

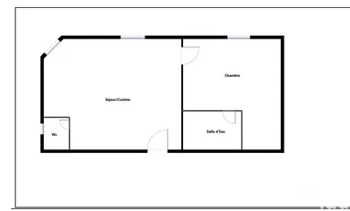
88/96 RUE PAUL Vaillant Couturier / Rue de Seine, Idéal pour un premier achat, un investissement locatif ou même comme pied-à-terre.... (Vendu libre). Situé à moins de 1km (15 min à pied du métro ligne 8 : École Vétérinaire - Maisons-Alfort) et de la gare RER D : Maisons-Alfort - Alfortville, il bénéficie d'un emplacement privilégié, proche de tout commerce et commodités. - Taxe foncière : 824 euros - Pas de Parking - Pas d'ascenseur - Une Cave Appartement de type F2 au 1er étage d'un immeuble ancien sécurisé de 2 étages, il offre un agencement optimisé avec une pièce de vie lumineuse avec un coin cuisine fonctionnel, une chambre avec salle de douche et WC séparés. Une cave complète le bien. La presente annonce immobiliere vise 2 lots situés dans une copropriété de 12 lots au total et ne faisant l'objet d'aucune procédure en cours citée à l'article L. 721-1 du code de la construction et de l'habitation. Montant moyen mensuel de charges déclaré par le vendeur : 130.67€ par mois (soit 1568 € annuel). Honoraires d'agence à la charge du vendeur. Information d'affichage énergétique sur ce bien : classe ENERGIE E indice 408 et classe CLIMAT C indice 13. Les informations sur les risques auxquels ce bien est exposé, y compris l'obligation légale de débroussaillement, sont disponibles sur le site Géorisques : http://www.georisques.gouv.fr. La présente annonce immobilière a été rédigée sous la responsabilité éditoriale de Mme Fatiha El Idrissi mandataire indépendant en immobilier (sans détention de fonds), agent commercial de la SAS I@D France immatriculé au RSAC de CRETEIL sous le numéro 410 896 633, titulaire de la carte de démarchage immobilier pour le compte de la société I@D France SAS.
Ref: 1750361
of
Fees incl. VAT payable by the seller
See the fees scaleEnergy performance diagnosis
Greenhouse gas emission index
Similar properties



