

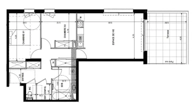
Appartement T3 avec terrasse à Sciez. Au cœur de la résidence contemporaine Esprit Léman, située avenue de Bonnatrait à Sciez, découvrez une adresse privilégiée entre lac et montagnes. À seulement 1 km du port et de la plage, cette résidence offre un cadre de vie exceptionnel dans le Bas-Chablais, à proximité immédiate de Thonon et avec un accès facilité à Genève. Disponible 2027. Un appartement raffiné : Situé au 1 er étage, orienté Sud-Est, cet appartement T3 de 66 m² environ habitables se prolonge par une terrasse de 16 m² environ. - Séjour/cuisine de 24 m² environ. - Deux belles chambres. - Salle de bains moderne et WC séparés. - Annexes incluses : 1 cellier, 1 parking extérieur et 1 parking intérieur. Des belles prestations : - Menuiseries extérieures avec double vitrage isolant. - Volets roulants électriques motorisés. - Résidence sécurisée avec visiophone et ascenseur. Un cadre de vie privilégié : - Port de Sciez et plage à 1 km, activités nautiques et de loisirs à proximité. - Commerces, écoles et marché local accessibles en quelques minutes. - Gare Léman Express à Perrignier (7 min) pour rejoindre rapidement Genève. - Nombreuses activités culturelles et sportives : tennis, VTT, ski, randonnées. N’hésitez pas à me contacter pour plus d’informations ou pour un accompagnement sur mesure. Honoraires d’agence à la charge du vendeur. Bien non soumis au DPE. Les informations sur les risques auxquels ce bien est exposé sont disponibles sur le site Géorisques : www.georisques.gouv.fr. La présente annonce immobilière a été rédigée sous la responsabilité éditoriale de Mlle Sarah Rozière EI (ID 83696), mandataire indépendant en immobilier (sans détention de fonds), agent commercial de la SAS I@D France immatriculé au RSAC de Clermont-Ferrand sous le numéro 978616993, titulaire de la carte de démarchage immobilier pour le compte de la société I@D France SAS.
Ref: 1794676-6
of
Fees incl. VAT payable by the seller
See the fees scaleEnergy performance diagnosis
Not requiredGreenhouse gas emission index
Not requiredSimilar properties


