

€157,900
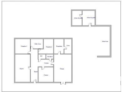
Nouveau ! Maison individuelle avec grande parcelle ! Maison en brique d'environ 129 m2 environ datant de 1974 sur une parcelle de 12 400m² environ. Dans un cadre unique et apaisant idéal pour les amoureux de la nature. Composée comme suit: - Au rez-de-chaussée : une cuisine indépendante, un salon/salle à manger, deux chambres, une salle d'eau, un WC individuel et un placard sous l'escalier. - A l'étage : un palier dessert deux chambres, un WC individuel avec un lave-main et un grenier à aménager de 18m² environ. - A l'extérieur: un garage de 34m² environ, une buanderie, une cave et plusieurs petites dépendances. Travaux à prévoir : menuiseries, système de chauffage, électricité, isolation, rafraichissement général, assainissement individuel … Des travaux... pas de panique je vous propose de vous accompagner sur la partie rénovation énergétique afin de rendre le bien plus performant et réduire ses consommations énergétiques. Cette maison, bien que nécessitant des travaux, est une véritable opportunité pour les amateurs de rénovation. Ne manquez pas cette occasion unique de réaliser votre projet de vie. Contactez moi dès maintenant pour une visite ! Honoraires d'agence à la charge du vendeur. Information d'affichage énergétique sur ce bien : classe ENERGIE G indice 522 et classe CLIMAT C indice 17. Les informations sur les risques auxquels ce bien est exposé, y compris l'obligation légale de débroussaillement, sont disponibles sur le site Géorisques : http://www.georisques.gouv.fr. La présente annonce immobilière a été rédigée sous la responsabilité éditoriale de M Ali Kucuk mandataire indépendant en immobilier (sans détention de fonds), agent commercial de la SAS I@D France immatriculé au RSAC de ORLEANS sous le numéro 919481283, titulaire de la carte de démarchage immobilier pour le compte de la société I@D France SAS.
Ref: 1647163
of
Fees incl. VAT payable by the seller
See the fees scaleEnergy performance diagnosis
Greenhouse gas emission index
Similar properties


