

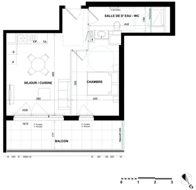
Appartement 2 pièces avec balcon plein Sud-Ouest – Antibes Situé dans un environnement calme et résidentiel, ce bel appartement 2 pièces de 40,25 m² environ au 1er étage bénéficie d’une orientation Sud-Ouest, idéale pour profiter de la lumière naturelle tout au long de la journée. ???? Un intérieur bien pensé Cet appartement offre un agencement optimisé et des volumes équilibrés : • Séjour/cuisine spacieux de 21,4 m² environ, ouvert sur le balcon, idéal pour recevoir ou se détendre. • Chambre lumineuse de 11,85 m² environ avec rangements intégrés. • Salle d’eau moderne avec WC de 7 m² environ. Les finitions sont soignées, et chaque espace a été conçu pour offrir confort et praticité au quotidien. ???? Un extérieur agréable Le balcon de 11,65 m² environ prolonge le séjour et permet de profiter d’une belle ouverture sur l’extérieur. Assez vaste pour y installer un coin repas ou un espace détente, il constitue un véritable atout pour les beaux jours. ???? Confort et prestations • Stationnement privatif en sous-sol inclus • Résidence moderne et sécurisée • Chauffage électrique individuel, économe et simple d’entretien ???? Rentabilité et atouts financiers • Prix de vente : 275 000 € • Loyer de marché estimé : 740 €/mois • Rentabilité brute estimée : 3,2 % • Frais de notaire à la charge du vendeur Une belle opportunité offrant un excellent équilibre entre surface habitable, prix maîtrisé, et rentabilité locative solide. ???? Idéal pour : • Un investisseur à la recherche d’un bien pérenne et rentable • Une résidence principale lumineuse au calme • Un pied-à-terre azuréen avec balcon et stationnement ________________________________________ ? Un bien rare sur le marché antibois, combinant orientation idéale, balcon généreux, stationnement privatif et rentabilité attractive. Contactez-nous dès aujourd’hui pour plus d’informations ou pour planifier une visite personnalisée. Honoraires d’agence à la charge du vendeur. Bien non soumis au DPE. Les informations sur les risques auxquels ce bien est exposé sont disponibles sur le site Géorisques : www.georisques.gouv.fr. La présente annonce immobilière a été rédigée sous la responsabilité éditoriale de Mlle Judicaelle Louis EI (ID 92421), mandataire indépendant en immobilier (sans détention de fonds), agent commercial de la SAS I@D France immatriculé au RSAC de DRAGUIGNAN sous le numéro 811245687, titulaire de la carte de démarchage immobilier pour le compte de la société I@D France SAS.
Réf : 1863394-7
soit
Honoraires TTC à la charge du vendeur
Voir le barème d'honorairesDiagnostic de performance énergétique (DPE)
Non requisIndice d'émission de gaz à effet de serre (GES)
Non requisBiens similaires



