

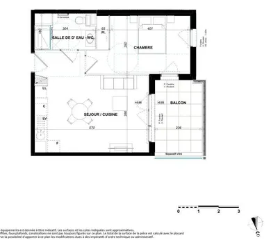
Appartement 2 pièces avec terrasse – Antibes Au 1?? étage d’une résidence moderne, ce bel appartement de 43 m² environ orienté Est offre un cadre de vie fonctionnel et lumineux. Intérieur fonctionnel : Séjour/cuisine spacieux de 24 m² environ ouvert sur l’extérieur Chambre confortable de 14 m² environ Salle d’eau avec WC intégré Extérieur agréable : Terrasse de 8,5 m² environ, idéale pour profiter des matinées ensoleillées Exposition Est, parfaite pour une belle luminosité dès le lever du jour Adresse stratégique : Quartier résidentiel calme Commerces et écoles accessibles à pied Nouvelle ligne de bus/tram reliant Sophia-Antipolis Accès rapide aux principaux axes routiers Polyvalent : Idéal en résidence principale ou pied-à-terre Excellent potentiel locatif (loyer estimé : 790 €/mois) Prix : 290 000 € (stationnement inclus) Un bien rare à Antibes, combinant espaces optimisés et terrasse intime pour profiter du climat méditerranéen. Contactez-nous pour plus d’informations ou une visite personnalisée. Honoraires d’agence à la charge du vendeur. Bien non soumis au DPE. Les informations sur les risques auxquels ce bien est exposé sont disponibles sur le site Géorisques : www.georisques.gouv.fr. La présente annonce immobilière a été rédigée sous la responsabilité éditoriale de Mlle Jessica Alessandrini EI (ID 90440), mandataire indépendant en immobilier (sans détention de fonds), agent commercial de la SAS I@D France immatriculé au RSAC de Draguigan sous le numéro 451826549, titulaire de la carte de démarchage immobilier pour le compte de la société I@D France SAS.
Réf : 1850489-2
soit
Honoraires TTC à la charge du vendeur
Voir le barème d'honorairesDiagnostic de performance énergétique (DPE)
Non requisIndice d'émission de gaz à effet de serre (GES)
Non requisBiens similaires



