
- Nouveau
269 000 €
Duplex à Saint-Gilles-Croix-de-Vie (85800)
- 2 chambres
- 3 pièces
- 63 m²


189 000 €
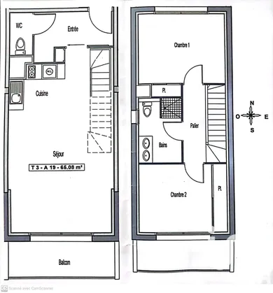
INVESTISSEURS Opportunité Rare - Duplex Moderne au Cœur de Saint-Gilles-Croix-de-Vie Découvrez ce magnifique appartement duplex situé au deuxième et dernier étage d'un charmant immeuble résidentiel, construit en 2011, au sud de Saint-Gilles-Croix-de-Vie. Avec une surface de 65 m², ce duplex est vendu avec 1 locataire 790€ / mois ! Au premier niveau, vous trouverez un espace de vie lumineux et spacieux, idéal pour accueillir un coin salon et une salle à manger. Avec une exposition au sud-est, vous bénéficierez d'une luminosité naturelle tout au long de la journée, créant une atmosphère chaleureuse et conviviale. La cuisine est à aménager selon vos envies, laissant place à la création d'un espace moderne et fonctionnel. Au deuxième niveau, l'appartement offre une surface nuit sans vis-à-vis avec 2 chambres avec placards et une salle d'eau avec WC, offrant un cadre paisible pour se reposer. La bonne condition générale de l'appartement garantit un emménagement serein, sans travaux à prévoir. Possibilité d'acquérir un garage et une place de parking en plus de l'appartement (renseignez-vous). La résidence, bien entretenue, ne dispose pas d'annexes telle qu'une piscine, mais bénéficie d'un emplacement idéal à proximité des commodités, des commerces, du lycée, du collège et des transports en commun. Vous pourrez profiter des charmes de Saint-Gilles-Croix-de-Vie, station balnéaire réputée de la côte vendéenne, offrant un cadre de vie agréable, entre mer et nature. Ne manquez pas cette rare occasion d'acquérir un duplex moderne dans un environnement recherché. Contactez nous dès maintenant pour organiser une visite et laissez-vous séduire par ce bien d'exception à Saint-Gilles-Croix-de-Vie. La presente annonce immobiliere vise 1 lot situé dans une copropriété de 55 lots au total et ne faisant l'objet d'aucune procédure en cours citée à l'article L. 721-1 du code de la construction et de l'habitation. Montant moyen mensuel de charges déclaré par le vendeur : 73.33€ par mois (soit 880 € annuel). Honoraires d'agence à la charge du vendeur. Information d'affichage énergétique sur ce bien : classe ENERGIE C indice 122 et classe CLIMAT C indice 23. Les informations sur les risques auxquels ce bien est exposé, y compris l'obligation légale de débroussaillement, sont disponibles sur le site Géorisques : www.georisques.gouv.fr. La présente annonce immobilière a été rédigée sous la responsabilité éditoriale de M Alexandre MERCERON mandataire indépendant en immobilier (sans détention de fonds), agent commercial de la SAS I@D France immatriculé au RSAC de roche sur yon sous le numéro 408083459, titulaire de la carte de démarchage immobilier pour le compte de la société I@D France SAS.
Réf : 1649689
soit
Honoraires TTC à la charge du vendeur
Voir le barème d'honorairesDiagnostic de performance énergétique (DPE)
Indice d'émission de gaz à effet de serre (GES)
Biens similaires

269 000 €



