

110 000 €
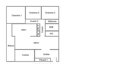
EVREUX centre ville et commerces à pied, spacieux appartement au dernier étage avec ascenseur, entrée avec placard, cuisine, séjour salon de 36 M² donnant sur un balcon plein sud de 12 M², couloir desservant WC, salle de bains, buanderie, 3 chambres. , Cellier, garage. La presente annonce immobiliere vise 3 lots situés dans une copropriété de 161 lots au total et ne faisant l'objet d'aucune procédure en cours citée à l'article L. 721-1 du code de la construction et de l'habitation. Montant moyen mensuel de charges déclaré par le vendeur : 662€ par mois (soit 7944 € annuel). Honoraires d'agence à la charge du vendeur. Information d'affichage énergétique sur ce bien : classe ENERGIE F indice 298 et classe CLIMAT F indice 93. Les informations sur les risques auxquels ce bien est exposé, y compris l'obligation légale de débroussaillement, sont disponibles sur le site Géorisques : http://www.georisques.gouv.fr. La présente annonce immobilière a été rédigée sous la responsabilité éditoriale de Mme Sabine PERRIN mandataire indépendant en immobilier (sans détention de fonds), agent commercial de la SAS I@D France immatriculé au RSAC de EVREUX sous le numéro 893308684, titulaire de la carte de démarchage immobilier pour le compte de la société I@D France SAS.
Réf : 1924079
soit
Honoraires TTC à la charge du vendeur
Voir le barème d'honorairesDiagnostic de performance énergétique (DPE)
Indice d'émission de gaz à effet de serre (GES)
Biens similaires
