

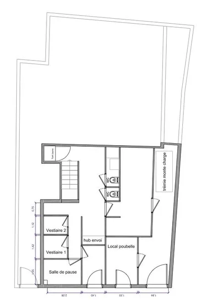
LOCATION PURE avec extraction 300, chambres froides et cuisines, Paris 20e .../... -Surface : 190 m2 environ, RDC : 60m2 environ, Sous-sol : 130m2 environ aménagé laboratoire .../... Eléments de cuisine compris (Tables réfrigérées 3 et 4 portes, chambres froides + et -, monte-charges,...) .../... -Extraction 300mm en 2 conduits de 200mm .../... -Loyer : 40K € /an, -Charges : 4 500€ /an -Foncière : 1302 € /an - Garantie : 3 mois de loyer HT HC - Garantie comp. : selon éléments comptables - Honoraires : 3 mois de loyer HT HC -Metro 3bis : Pelleport, Proche ligne 3 et Boulevards Maréchaux .../... - Bail Neuf, Idéal laboratoire ou Dark Kitchen, peu d'aménagements. Possibilité de Restaurant, Boulangerie : Beau linéaire, RDC avec lumière traversante (rue - cour) .../... A SAISIR RAPIDEMENT .../... Information d'affichage énergétique sur le bien associé à cette annonce : DPE NS indice et GES NS indice .La présente annonce immobilière a été rédigée sous la responsabilité éditoriale de M. Julien Bernardini (ID 79749), Agent Commercial mandataire en immobilier immatriculé au Registre Spécial des Agents Commerciaux (RSAC) du Tribunal de Commerce de VERSAILLES sous le numéro 499641314
Réf : 1659739
Diagnostic de performance énergétique (DPE)
Non requisIndice d'émission de gaz à effet de serre (GES)
Non requisBiens similaires
