

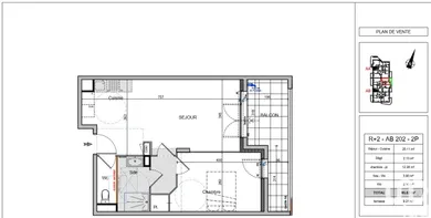
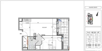
À vendre – Appartement 2 pièces 45m2 environ à Antibes (06600) – Proche Sophia Antipolis / Vieil Antibes / Aéroport de Nice 45.62 m² environ Loi Carrez | Terrasse 9.21 m² environ | 2 Box fermés | 2 Caves Description du bien : Dans une résidence neuve sécurisée à Antibes, découvrez ce bel appartement 2 pièces de 45.62 m² environ, situé au 2eme étage avec ascenseur, à proximité immédiate de toutes commodités. Agencement optimisé : Spacieux hall d’entrée avec placards Séjour lumineux ouvrant sur une grande terrasse Cuisine ouverte à aménager 1 chambres avec espace de rangement Salle de bain contemporaine WC indépendant Dégagement Terrasse de 9.21 m² environ, exposée nord est, idéale pour profiter du soleil de la Côte d’Azur. Localisation privilégiée : À quelques minutes du Vieil Antibes Accès rapide à Sophia Antipolis 15 minutes de l’Aéroport de Nice Côte d’Azur Proche des plages, des commerces, des transports en commun et des écoles Les plus du bien : Résidence neuve aux normes RT 2012 2 box fermés en sous-sol (garage sécurisé) 2 caves incluses Faibles charges Idéal pour un investissement locatif, une résidence principale ou un pied-à-terre Honoraires d’agence à la charge du vendeur. Bien non soumis au DPE. Les informations sur les risques auxquels ce bien est exposé sont disponibles sur le site Géorisques : www.georisques.gouv.fr. La présente annonce immobilière a été rédigée sous la responsabilité éditoriale de M. Alexandre Rachel EI (ID 57750), mandataire indépendant en immobilier (sans détention de fonds), agent commercial de la SAS I@D France immatriculé au RSAC de DRAGUIGNAN sous le numéro 880748447, titulaire de la carte de démarchage immobilier pour le compte de la société I@D France SAS.
Ref: 1674897-4
of
Fees incl. VAT payable by the seller
See the fees scaleEnergy performance diagnosis
Not requiredGreenhouse gas emission index
Not requiredSimilar properties



