

€145,000
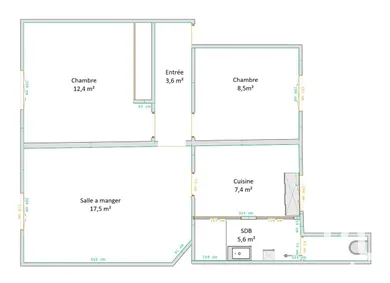
Opportunité à Saisir - Appartement à Réformer de 55m2 à Champs-sur-Marne *Description de l'appartement :* Situé à Champs-sur-Marne, cet appartement de 55m2 est une opportunité à ne pas manquer pour les investisseurs ou les bricoleurs en quête d'un projet de rénovation. Construit en 1930, ce bien d'une surface généreuse offre un beau potentiel d'aménagement pour en faire un espace de vie personnalisé et chaleureux. *Situation géographique :* Idéalement situé dans une zone recherchée de Champs-sur-Marne, proche des commodités, des transports en commun et des écoles, cet appartement bénéficie d'un emplacement stratégique. Vous pourrez profiter de la quiétude de ce quartier tout en étant à proximité des routes principales pour vos déplacements. *Points forts de l'appartement :* - Surface de 55m2 offrant de multiples possibilités d'aménagement. - Construction datant de 1930, offrant du cachet et du caractère à révéler. - Appartement situé au premier étage d'un immeuble de deux niveaux, offrant une belle luminosité. - Travaux de rénovation à prévoir, permettant une personnalisation totale de l'espace selon vos goûts et besoins. *Opportunité d'investissement :* Cet appartement représente une réelle opportunité d'investissement pour une personne souhaitant se lancer dans un projet de rénovation. Une fois les travaux terminés, vous pourrez bénéficier d'un bien à votre image et correspondant parfaitement à vos attentes. *Conclusion :* Ne manquez pas cette occasion unique d'acquérir un appartement à rénover à Champs-sur-Marne. Avec un potentiel d'aménagement intéressant et un emplacement stratégique, ce bien saura séduire les amateurs de projets de rénovation. Contactez-nous dès maintenant pour organiser une visite et découvrir tout le potentiel caché de cet appartement ! Honoraires d'agence à la charge du vendeur. Information d'affichage énergétique sur ce bien : classe ENERGIE E indice 319 et classe CLIMAT E indice 69. Les informations sur les risques auxquels ce bien est exposé, y compris l'obligation légale de débroussaillement, sont disponibles sur le site Géorisques : http://www.georisques.gouv.fr. La présente annonce immobilière a été rédigée sous la responsabilité éditoriale de Mme Aurelie Rodriguez Aller mandataire indépendant en immobilier (sans détention de fonds), agent commercial de la SAS I@D France immatriculé au RSAC de PARIS sous le numéro 834981953, titulaire de la carte de démarchage immobilier pour le compte de la société I@D France SAS.
Ref: 1857022
of
Fees incl. VAT payable by the seller
See the fees scaleEnergy performance diagnosis
Greenhouse gas emission index
Similar properties



