

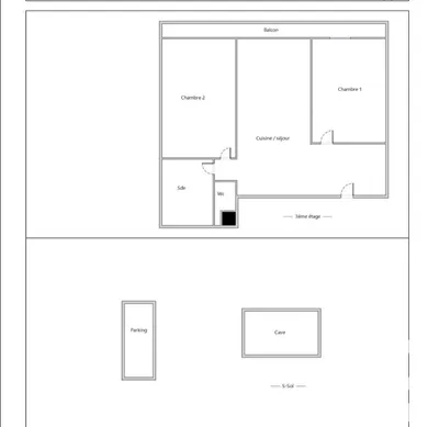
Appartement de type T3 avec Balcon et vue dégagée. VENDU LOUÉ. Situé à moins de 5min à pied du TRAM T9 (station VERDUN-HOCHE ou TROIS COMMUNES), appartement plein de potentiel de 46m² au 3eme et dernier étage offrant un espace de vie lumineux et fonctionnel . Il se compose d'une entrée en étoile desservant 2 chambres, une cuisine, un séjour sur balcon, Une salle de bain et des WC séparés. Vous disposerez également d'une place de parking en extérieur et une cave en sous sol. Sa situation géographique stratégique vous permettra d'accéder rapidement aux commerces de proximité, aux écoles, aux transports en commun (Gare RER C : Choisy le Roi à 15min) et aux axes routiers principaux. Avec un petit coup de rénovation, vous pourrez personnaliser cet espace selon vos goûts et vos besoins. La presente annonce immobiliere vise 3 lots situés dans une copropriété de 110 lots au total et ne faisant l'objet d'aucune procédure en cours citée à l'article L. 721-1 du code de la construction et de l'habitation. Montant moyen mensuel de charges déclaré par le vendeur : 100€ par mois (soit 1200 € annuel). Honoraires d'agence à la charge du vendeur. Information d'affichage énergétique sur ce bien : classe ENERGIE G indice 535 et classe CLIMAT C indice 17. Les informations sur les risques auxquels ce bien est exposé, y compris l'obligation légale de débroussaillement, sont disponibles sur le site Géorisques : http://www.georisques.gouv.fr. La présente annonce immobilière a été rédigée sous la responsabilité éditoriale de Mme Fatiha El Idrissi mandataire indépendant en immobilier (sans détention de fonds), agent commercial de la SAS I@D France immatriculé au RSAC de CRETEIL sous le numéro 410 896 633, titulaire de la carte de démarchage immobilier pour le compte de la société I@D France SAS.
Ref: 1738730
of
Fees incl. VAT payable by the seller
See the fees scaleEnergy performance diagnosis
Greenhouse gas emission index
Similar properties



