
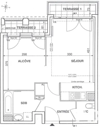
1P/2P meublée moderne avec 2 balcons au dernier étage sans vis-à-vis. Merci de NE PAS APPELER et de remplir le FORMULAIRE DE CONTACT en ligne figurant sur cette annonce. VISITES ORGANISEES UNIQUEMENT SUR DOSSIER COMPLET et CONFORME déposé via la plateforme sécurisée. Disponible immédiatement. Situé au 5ᵉ et dernier étage avec ascenseur d’une résidence récente moderne et sécurisée (2013), cet appartement meublé de type studio avec alcôve (ou 2 pièces) offre un cadre de vie confortable, lumineux et fonctionnel. Idéal pour un jeune actif ou un couple, il séduira par ses prestations de qualité et sa localisation recherchée. Dès l’entrée, vous découvrirez un appartement parfaitement agencé, il se se compose : - d'un espace séjour agréable bénéficiant d’une belle hauteur sous plafond de plus de 3 m, renforçant la sensation d’espace et de luminosité., - d'une cuisine équipée et fonctionnelle, - d’une alcôve aménagée en espace nuit, offrant une vraie séparation. La salle de bains moderne est équipée d’une baignoire, idéale pour vos moments de détente. Les WC séparés apportent un confort supplémentaire au quotidien. PRESTATIONS : - Deux balcons d'un total d'env. 5 m² avec vue dégagée lointaine, parfaits pour profiter des beaux jours - Dernier étage calme et lumineux - Parquet massif - Résidence récente et bien entretenue LOCALISATION & PRATICITÉ : Emplacement idéal à Romainville, à proximité immédiate de la mairie, des commodités, des commerces, des écoles, des transports (métro ligne M11, bus), et des espaces verts. Un secteur dynamique et en plein développement. CONDITIONS FINANCIÈRES : - Loyer mensuel charges comprises : 1 155 € - Loyer hors charges : 1 004 € / mois (conforme à l’encadrement des loyers) - Charges mensuelles : 100 € / mois (incluant eau et chauffage urbain sur compteurs, régularisation annuelle selon décompte du syndic) - Dépôt de garantie : 2 008 € - Honoraires locataire : 432 € - Frais d'état des lieux à la charge du locataire : ~ 120 € Critères d’éligibilité : - Revenus nets mensuels exigés : minimum 3 fois le loyer CC. - Visites uniquement après étude de votre dossier complet (via la plateforme sécurisée de contact). Appartement prêt à accueillir ses futurs occupants. Ne tardez pas à poser vos valises et à savourer pleinement le confort de cet appartement Information d'affichage énergétique sur ce bien : classe ENERGIE C indice 98 et classe CLIMAT C indice 19. Les informations sur les risques auxquels ce bien est exposé, y compris l'obligation légale de débroussaillement, sont disponibles sur le site Géorisques : http://www.georisques.gouv.fr. La présente annonce immobilière a été rédigée sous la responsabilité éditoriale de M Nicolas Vysavat mandataire indépendant en immobilier (sans détention de fonds), agent commercial de la SAS I@D France immatriculé au RSAC de BOBIGNY sous le numéro 854061090, titulaire de la carte de démarchage immobilier pour le compte de la société I@D France SAS. Location meublée. Montant du loyer mensuel charges comprises : 1104.00 euros / mois. Provision mensuelle avec récupération annuelle : 100.00 euros / mois. Zone soumise à encadrement : oui. Montant du loyer de base : 836.00 euros / mois. Montant du loyer de référence majoré : 1004.00 euros / mois. Dépôt de garantie : 2008 euros. Honoraires TTC à la charge du locataire: 432 euros (soit 10€/m²).
Réf : 1913564
Diagnostic de performance énergétique (DPE)
Indice d'émission de gaz à effet de serre (GES)