
905 €charges comprises
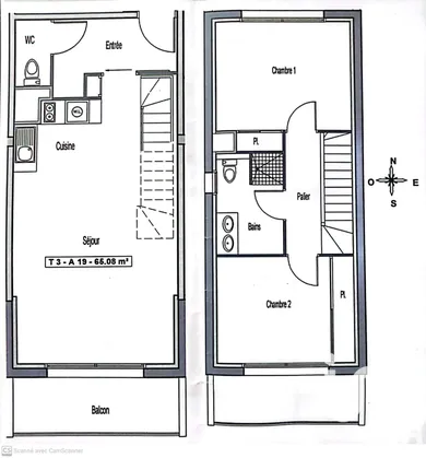
Sublime duplex de 64m² avec Balcon et Garage à Saint-Gilles-Croix-de-Vie Laissez-vous séduire par ce magnifique duplex situé dans une charmante résidence de 2010 à Saint-Gilles-Croix-de-Vie. Avec ses 2 chambres et son agréable espace de vie, cet appartement offre un cadre de vie idéal pour les familles ou les personnes à la recherche de confort et de fonctionnalité. En pénétrant dans ce duplex, vous serez immédiatement charmé par l'agencement optimal des pièces. Le premier niveau accueille un bel espace de vie lumineux, une cuisine équipée peut être aménagée selon vos envies. Une salle d'eau et des toilettes séparées viennent compléter ce niveau. À l'étage, vous trouverez deux chambres spacieuses offrant un espace intime et chaleureux. La salle d'eau avec douche vous promet des moments de détente et de bien-être. Un balcon exposé plein sud vous permettra de profiter des rayons du soleil et de prendre vos repas en extérieur en toute tranquillité. Les nombreux équipements de cet appartement sauront vous séduire : câble TV, fibre optique, interphone, chauffage au gaz naturel, garage et place de parking. Vous profiterez d'un cadre de vie agréable et sécurisé au quotidien. La résidence est idéalement située, à proximité immédiate des commerces, des écoles et des transports en commun. À quelques minutes des plages de sable fin, vous pourrez profiter de balades en bord de mer et de magnifiques couchers de soleil. Ce duplex en parfait état est une véritable opportunité à ne pas manquer. Contactez-nous dès maintenant pour organiser une visite et laissez-vous charmer par ce bien d'exception à Saint-Gilles-Croix-de-Vie. Information d'affichage énergétique sur ce bien : classe ENERGIE C indice 122 et classe CLIMAT C indice 23. Les informations sur les risques auxquels ce bien est exposé, y compris l'obligation légale de débroussaillement, sont disponibles sur le site Géorisques : http://www.georisques.gouv.fr. La présente annonce immobilière a été rédigée sous la responsabilité éditoriale de M Alexandre MERCERON mandataire indépendant en immobilier (sans détention de fonds), agent commercial de la SAS I@D France immatriculé au RSAC de roche sur yon sous le numéro 408083459, titulaire de la carte de démarchage immobilier pour le compte de la société I@D France SAS. Location non meublée. Montant du loyer mensuel charges comprises : 905.00 euros / mois. Charges forfaitaires : 95.00 euros / mois. Zone soumise à encadrement : non. Dépôt de garantie : 810 euros. Honoraires TTC à la charge du locataire: 450 euros (soit 7€/m²).
Réf : 1869399
Diagnostic de performance énergétique (DPE)
Indice d'émission de gaz à effet de serre (GES)