

383 000 €
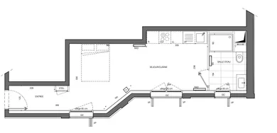
Paris 12ème, Métro Porte de charenton, dans un immeuble neuf au 6ème étage un studio de 29,5m2 environ comprenant: entrée, une belle pièce à vivre, un séjour avec coin cuisine et une salle d'eau avec wc. belle prestation, parquet, RT2012, Double vitrage. Honoraires d’agence à la charge du vendeur.Information d'affichage énergétique sur ce bien : DPE et GES vierges. Les informations sur les risques auxquels ce bien est exposé sont disponibles sur le site Géorisques : www.georisques.gouv.fr. La présente annonce immobilière a été rédigée sous la responsabilité éditoriale de M. Stéphane Wang EI (ID 16553), mandataire indépendant en immobilier (sans détention de fonds), agent commercial de la SAS I@D France immatriculé au RSAC de BOBIGNY sous le numéro 803788728, titulaire de la carte de démarchage immobilier pour le compte de la société I@D France SAS.
Réf : 739976-2
soit
Honoraires TTC à la charge du vendeur
Voir le barème d'honorairesDiagnostic de performance énergétique (DPE)
Non requisIndice d'émission de gaz à effet de serre (GES)
Non requisBiens similaires




Villes à proximité
Autres types de bien à Paris 12
Autres types de bien à proximité
Autres projets à Paris 12