

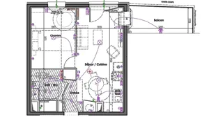
Venez découvrir cet appartement d'environ 40 m² environ avec balcon et 2 places de parking dans un village situé à environ 20 minutes de Grenoble en voiture. Chauffage avec pompe à chaleur individuelle, local à vélos commun.... Ne passez pas devant cette belle opportunité Honoraires d’agence à la charge du vendeur. Bien non soumis au DPE. Les informations sur les risques auxquels ce bien est exposé sont disponibles sur le site Géorisques : www.georisques.gouv.fr. La présente annonce immobilière a été rédigée sous la responsabilité éditoriale de Mme Corinne Rouyer EI (ID 61495), mandataire indépendant en immobilier (sans détention de fonds), agent commercial de la SAS I@D France immatriculé au RSAC de Clermont-Ferrand sous le numéro 851754317, titulaire de la carte de démarchage immobilier pour le compte de la société I@D France SAS.
Réf : 1892543-1
soit
Honoraires TTC à la charge du vendeur
Voir le barème d'honorairesDiagnostic de performance énergétique (DPE)
Non requisIndice d'émission de gaz à effet de serre (GES)
Non requisBiens similaires




Villes à proximité
Autres types de bien à Claix
Autres types de bien à proximité