

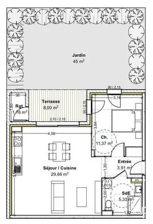
T2 avec balcon au 1er et dernier étage. La résidence LES JARDINS DE GUÉREINS, imaginée par AX'HOME, est une copropriété à taille humaine avec 1 seul bâtiment d'un étage, 8 appartements et 4 maisons individuelles. A seulement 2 min de Belleville, ville dynamique qui séduit par son équilibre parfait entre ville et campagne, à 2 minutes de l'autoroute, des commerces… LES JARDINS DE GUÉREINS vous proposent cet appartement de 2 pièces avec balcon et stationnement privatif. Vous pourrez avoir le choix des finitions (carrelage, faïence, peinture…). Frais de notaire réduits. Honoraires d’agence à la charge du vendeur. Bien non soumis au DPE. Les informations sur les risques auxquels ce bien est exposé sont disponibles sur le site Géorisques : www.georisques.gouv.fr. La présente annonce immobilière a été rédigée sous la responsabilité éditoriale de Mme Myriam Devesa EI (ID 69755), mandataire indépendant en immobilier (sans détention de fonds), agent commercial de la SAS I@D France immatriculé au RSAC de Villefranche - Tarare sous le numéro 447789744, titulaire de la carte de démarchage immobilier pour le compte de la société I@D France SAS.
Réf : 1979350-1
soit
Honoraires TTC à la charge du vendeur
Voir le barème d'honorairesDiagnostic de performance énergétique (DPE)
Non requisIndice d'émission de gaz à effet de serre (GES)
Non requisBiens similaires


Villes à proximité
Autres types de bien à Guéreins
Autres types de bien à proximité