

UN CADRE DE VIE RARE AUX PORTES DE PARIS Ormesson-sur-Marne – Quartier de la Plaine À seulement 20 km de Paris, découvrez une résidence élégante nichée dans l’un des quartiers les plus prisés d’Ormesson-sur-Marne, au cœur d’un environnement calme, verdoyant et résidentiel. Mobilité facilitée Ligne de bus 8 à 150 m, direction la gare RER A La Varenne Chennevières Gare RER A à 15 min à vélo, Paris en 25 min Accès rapide aux autoroutes A4 et A86 Centre commercial Pincevent à 4 min en voiture Une douceur de vivre au quotidien La résidence s’inscrit dans le quartier de la Plaine bordé par le golf d’Ormesson, adossé au prestigieux château. Ici, les rues pavillonnaires, les jardins et les petits immeubles collectifs créent une atmosphère apaisante et conviviale. Ce nouveau projet urbain, écoresponsable et à taille humaine, redonne souffle au quartier avec: mobilités douces corridor écologique place urbaine conviviale esprit « zéro stress » Des extérieurs pensés pour le bien-être Balcons, terrasses ou loggias prolongent généreusement les espaces de vie vers l’extérieur. Les façades végétalisées, les plantations variées et les essences locales créent un véritable écrin de nature, tout en préservant l’intimité de chaque logement. Jardins privatifs pour certains appartements En rez-de-chaussée, certains logements bénéficient de jardins individuels, à l’abri des regards, parfaits pour partager des moments privilégiés en famille ou entre amis, dans le calme le plus total. Une résidence où nature, confort et accessibilité s’harmonisent parfaitement. Un lieu de vie rare, idéal pour ceux qui recherchent la tranquillité sans renoncer à la proximité de Paris. À visiter sans tarder – Coup de cœur assuré dès les premiers pas. Honoraires d’agence à la charge du vendeur. Bien non soumis au DPE. Les informations sur les risques auxquels ce bien est exposé sont disponibles sur le site Géorisques : www.georisques.gouv.fr. La présente annonce immobilière a été rédigée sous la responsabilité éditoriale de M. Jean Pontes EI (ID 35006), mandataire indépendant en immobilier (sans détention de fonds), agent commercial de la SAS I@D France immatriculé au RSAC de ANGERS sous le numéro 484017314, titulaire de la carte de démarchage immobilier pour le compte de la société I@D France SAS.
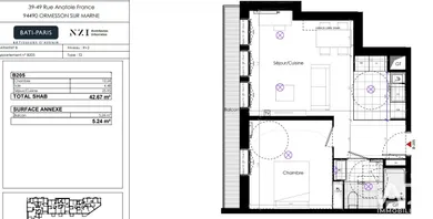
Réf : 1903029-1
soit
Honoraires TTC à la charge du vendeur
Voir le barème d'honorairesDiagnostic de performance énergétique (DPE)
Non requisIndice d'émission de gaz à effet de serre (GES)
Non requisBiens similaires




Villes à proximité
Autres types de bien à Ormesson-sur-Marne
Autres types de bien à proximité