

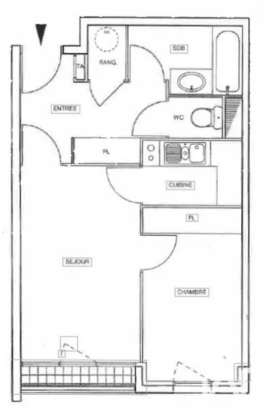
Quartier Hoche - T2 Loué + balcon + place de parking en sous-sol * INVESTISSEUR- BAIL COMMERCIAL. LMNP*. Le paiement des loyers est assuré & garantie tous les mois que votre bien soit loué ou non. - Commerces au pied de la résidence - A 250m de la ligne 5 (métro Hoche) Résidence de 2004, Appartement de 37,56 m2 vendu loué et meublé, comprenant une vaste entrée avec penderie & placard, un salon avec accès au balcon, une cuisine, une chambre, une salle de bains, un wc séparé. * Laverie à disposition * Une place de parking en sous-sol * Investissement en Loyer Meublé Non professionnel. • Loyer annuel CC : 6 920 euros . Charges annuelles : 784,20 euros • Gestionnaire : RESIDIS La presente annonce immobiliere vise 2 lots situés dans une copropriété de 140 lots au total et ne faisant l'objet d'aucune procédure en cours citée à l'article L. 721-1 du code de la construction et de l'habitation. Montant moyen mensuel de charges déclaré par le vendeur : 65.35€ par mois (soit 784.2 € annuel). Honoraires d'agence à la charge du vendeur. Information d'affichage énergétique sur ce bien : classe ENERGIE C indice 165 et classe CLIMAT A indice 4. Les informations sur les risques auxquels ce bien est exposé, y compris l'obligation légale de débroussaillement, sont disponibles sur le site Géorisques : http://www.georisques.gouv.fr. La présente annonce immobilière a été rédigée sous la responsabilité éditoriale de Mme Claire Puissant mandataire indépendant en immobilier (sans détention de fonds), agent commercial de la SAS I@D France immatriculé au RSAC de CRETEIL sous le numéro 801765264, titulaire de la carte de démarchage immobilier pour le compte de la société I@D France SAS.
Réf : 1924033
soit
Honoraires TTC à la charge du vendeur
Voir le barème d'honorairesDiagnostic de performance énergétique (DPE)
Indice d'émission de gaz à effet de serre (GES)
Biens similaires




Villes à proximité
Autres types de bien à Pantin
Autres types de bien à proximité