

443 000 €
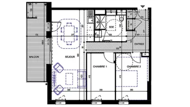
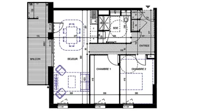
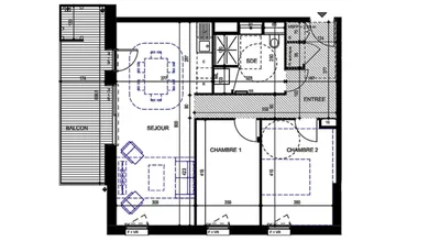
Appartement T3 avec balcon et box à Annecy. Située Avenue de Vert-Bois, la résidence Les Camarines s’érige comme un havre résidentiel et verdoyant, à seulement quelques minutes du centre historique d’Annecy et de son lac. Disponible 2027. Au 2 ème étage , découvrez un appartement T3 de 66 m² environ, prolongé par un balcon de 12 m² environ. Il se compose d’un séjour/cuisine lumineux de 27 m² environ, de deux belles chambres et d’une salle d’eau moderne. Annexes : box privatif en sous-sol. Belles prestations : - Pompe à chaleur 3 en 1 (chauffage, rafraîchissement, eau chaude). - Grandes baies vitrées, volets roulants électriques. - Salle d’eau équipée et personnalisable. - Résidence sécurisée avec espaces paysagers, locaux vélos et stationnements boxés. Une adresse recherchée : - Centre d’Annecy et gare SNCF à 10 minutes. - Lac d’Annecy et plages accessibles en vélo. - Commerces, écoles et services au pied de la résidence. Cet appartement conjugue modernité, confort et emplacement stratégique, au sein d’un cadre verdoyant et durable. N’hésitez pas à me contacter pour plus d’informations ou pour un accompagnement sur mesure. Honoraires d’agence à la charge du vendeur. Bien non soumis au DPE. Les informations sur les risques auxquels ce bien est exposé sont disponibles sur le site Géorisques : www.georisques.gouv.fr. La présente annonce immobilière a été rédigée sous la responsabilité éditoriale de M. Pierre Magerand EI (ID 86098), mandataire indépendant en immobilier (sans détention de fonds), agent commercial de la SAS I@D France immatriculé au RSAC de Cusset sous le numéro 938729175, titulaire de la carte de démarchage immobilier pour le compte de la société I@D France SAS.
Réf : 1845935-14
soit
Honoraires TTC à la charge du vendeur
Voir le barème d'honorairesDiagnostic de performance énergétique (DPE)
Non requisIndice d'émission de gaz à effet de serre (GES)
Non requisBiens similaires




Villes à proximité
Autres types de bien à Annecy
Autres types de bien à proximité
Autres projets à Annecy