

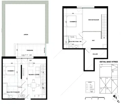
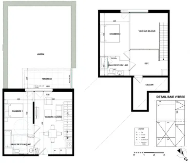
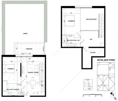
Appartement 3 pièces duplex avec jardin privatif – Antibes Ce superbe appartement 3 pièces en duplex de 72,35 m² environ offre un cadre de vie alliant espace, confort et sérénité. Situé en rez-de-chaussée, il bénéficie d’une orientation Nord-Est, d’un jardin de près de 50 m² environ et d’une terrasse de 10 m² environ, parfaits pour profiter du climat méditerranéen. ???? Un intérieur moderne et bien conçu L’espace intérieur se distingue par ses volumes harmonieux et sa luminosité : • Séjour/cuisine de 20,7 m² environ, ouvert sur la terrasse et le jardin. • Deux chambres spacieuses (12,45 m² environ et 13,15 m² environ). • Deux salles d’eau avec WC pour plus de confort. • Cellier de 7,35 m² environ, idéal pour le rangement. • Dégagement de 8,75 m² environ, optimisant la circulation et les volumes. Les espaces sont pensés pour offrir un confort optimal au quotidien, avec des finitions soignées et des prestations de qualité. ???? Un extérieur de 60 m² environ à vivre toute l’année Le jardin privatif de 49,85 m² environ et la terrasse de 10,15 m² environ prolongent harmonieusement l’espace intérieur. Un véritable lieu de détente, idéal pour recevoir, déjeuner en plein air ou créer un coin lounge au calme. ???? Confort et prestations • Place de stationnement privative en sous-sol incluse. • Résidence sécurisée, à taille humaine, avec espaces verts paysagers. • Chauffage électrique individuel. ???? Un investissement à fort potentiel • Prix : 438 000 € (frais de notaire à la charge du vendeur) • Surface totale : plus de 130 m² environ (intérieur + extérieurs) • Loyer de marché estimé : 1 000 €/mois • Rentabilité brute estimée : 3 % Cet appartement séduit autant pour une résidence principale confortable que pour un investissement locatif patrimonial. Son jardin et ses volumes en duplex en font un bien rare sur le marché antibois. ???? Idéal pour : • Un couple ou une famille souhaitant profiter d’un cadre de vie paisible • Un investisseur recherchant un produit rentable et valorisable • Un pied-à-terre lumineux et fonctionnel sur la Côte d’Azur ________________________________________ ? Un bien rare combinant grand jardin, confort intérieur et emplacement recherché à Antibes. Contactez-nous dès maintenant pour plus d’informations ou organiser une visite personnalisée. Honoraires d’agence à la charge du vendeur. Bien non soumis au DPE. Les informations sur les risques auxquels ce bien est exposé sont disponibles sur le site Géorisques : www.georisques.gouv.fr. La présente annonce immobilière a été rédigée sous la responsabilité éditoriale de Mlle Jessica Alessandrini EI (ID 90440), mandataire indépendant en immobilier (sans détention de fonds), agent commercial de la SAS I@D France immatriculé au RSAC de Draguigan sous le numéro 451826549, titulaire de la carte de démarchage immobilier pour le compte de la société I@D France SAS.
Réf : 1863394-2
soit
Honoraires TTC à la charge du vendeur
Voir le barème d'honorairesDiagnostic de performance énergétique (DPE)
Non requisIndice d'émission de gaz à effet de serre (GES)
Non requisBiens similaires



