

450 000 €
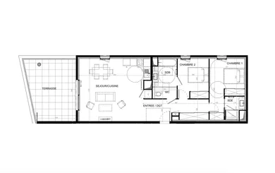
Appartement T3 avec terrasse et places de parking sécurisées à Baillargues Situé dans un environnement résidentiel calme et recherché aux portes de Montpellier, la résidence bénéficie d’une situation idéale à proximité du centre du village, des commerces, des écoles ainsi que de la gare TER permettant de rejoindre Montpellier en quelques minutes. Découvrez cet appartement T3 offrant un cadre de vie agréable et lumineux. D’une surface habitable de 81,7 m² environ, l’appartement se compose d’une pièce de vie avec séjour et cuisine ouverte de 35,6 m² environ, prolongée par une spacieuse terrasse de 23 m² environ, idéale pour profiter des fins de journée en extérieur. L’espace nuit comprend : Une chambre avec salle de bains privatives, Une chambre avec salle d'eau privative, Un WC indépendant. L’appartement est vendu avec deux places de parking en sous-sol sécurisé. Un appartement idéal pour une résidence principale ou un investissement aux portes de Montpellier. Pour plus de renseignements, n’hésitez pas à me contacter. Honoraires d’agence à la charge du vendeur. Bien non soumis au DPE. Les informations sur les risques auxquels ce bien est exposé sont disponibles sur le site Géorisques : www.georisques.gouv.fr. La présente annonce immobilière a été rédigée sous la responsabilité éditoriale de Mme Penelope Stoker EI (ID 83102), mandataire indépendant en immobilier (sans détention de fonds), agent commercial de la SAS I@D France immatriculé au RSAC de Paris sous le numéro 930194964, titulaire de la carte de démarchage immobilier pour le compte de la société I@D France SAS.
Réf : 1903897-7
soit
Honoraires TTC à la charge du vendeur
Voir le barème d'honorairesDiagnostic de performance énergétique (DPE)
Non requisIndice d'émission de gaz à effet de serre (GES)
Non requisBiens similaires




Villes à proximité
Autres types de bien à Baillargues
Autres types de bien à proximité
Autres projets à Baillargues