

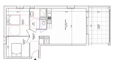
Appartement T3 avec terrasse à Bormes-les-Mimosas. Située chemin du Content, au cœur d’un environnement naturel préserve, la résidence Le Parc du Content conjugue architecture provençale et douceur de vivre méditerranéenne. Implantée dans un quartier calme et arboré, cette adresse incarne sérénité et bien-être au quotidien. Disponible 2028. Un appartement raffiné : Situé au 1 er étage, cet appartement T3 de 61 m² environ habitables se prolonge par une terrasse de 14 m² environ. - Séjour de 27 m² environ. - Deux chambres confortables. - Salle d'eau moderne. De belles prestations : - Menuiseries extérieures double vitrage isolant. - Isolation thermique et acoustique renforcée. - Espaces verts paysagers et zones ombragées au sein du domaine. L’art de vivre à Bormes-les-Mimosas : - À proximité du village, de ses boutiques et restaurants. - À quelques minutes des plages du Lavandou. - Entre Hyères, Toulon et Saint-Tropez. - Domaine paysager avec promenade végétalisée. - Quartier calme et résidentiel, idéal pour profiter de la douceur méditerranéenne. N’hésitez pas à me contacter pour plus d’informations ou pour un accompagnement sur mesure. Honoraires d’agence à la charge du vendeur. Bien non soumis au DPE. Les informations sur les risques auxquels ce bien est exposé sont disponibles sur le site Géorisques : www.georisques.gouv.fr. La présente annonce immobilière a été rédigée sous la responsabilité éditoriale de Mlle Sarah Rozière EI (ID 83696), mandataire indépendant en immobilier (sans détention de fonds), agent commercial de la SAS I@D France immatriculé au RSAC de Clermont-Ferrand sous le numéro 978616993, titulaire de la carte de démarchage immobilier pour le compte de la société I@D France SAS.
Réf : 1896270-10
soit
Honoraires TTC à la charge du vendeur
Voir le barème d'honorairesDiagnostic de performance énergétique (DPE)
Non requisIndice d'émission de gaz à effet de serre (GES)
Non requisBiens similaires



