

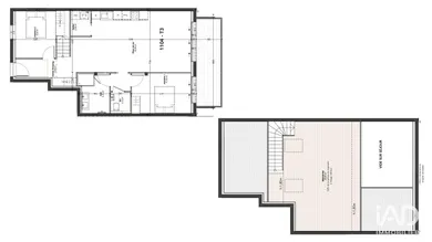
Appartement T3 avec balcon et vue océan à Châtelaillon-Plage. Située boulevard de la Mer, au cœur d’un environnement côtier exceptionnel, la résidence contemporaine Villa Marine conjugue élégance architecturale et confort de vie. Face à l’océan, à proximité immédiate de la plage, des commerces, des transports, du marché couvert et des équipements de loisirs, cette adresse offre un cadre paisible et privilégié à seulement 10 minutes de La Rochelle. Disponible 2027. Un appartement raffiné : Situé au 1 er étage, cet appartement T3 de 101 m² environ habitables se prolonge par un balcon de 11 m² environ. - Pièce de vie de 34 m² environ. - Deux chambres confortables. - Salle d’eau moderne. - Une mezzanine de 30 m² environ. - Annexes incluses : deux parkings extérieurs privatifs. De belles prestations : - Pompe à chaleur pour chauffage et eau chaude. - Terrasses habillées de dalles sur plots, jardin engazonné. - Résidence sécurisée avec contrôle d’accès, aménagements paysagers soignés et qualité architecturale haut de gamme. L’art de vivre à Châtelaillon-Plage : - Face à l’océan, sur la plus belle section du front de mer. - À quelques minutes du marché couvert, des restaurants, du casino et du centre de thalassothérapie. - Accès rapide à la gare SNCF (9 min à pied) et à La Rochelle (10 km). - Environnement préservé, ambiance conviviale toute l’année. N’hésitez pas à me contacter pour plus d’informations ou pour un accompagnement sur mesure. Honoraires d’agence à la charge du vendeur. Bien non soumis au DPE. Les informations sur les risques auxquels ce bien est exposé sont disponibles sur le site Géorisques : www.georisques.gouv.fr. La présente annonce immobilière a été rédigée sous la responsabilité éditoriale de M. Pierre Magerand EI (ID 86098), mandataire indépendant en immobilier (sans détention de fonds), agent commercial de la SAS I@D France immatriculé au RSAC de Cusset sous le numéro 938729175, titulaire de la carte de démarchage immobilier pour le compte de la société I@D France SAS.
Réf : 1823666-3
soit
Honoraires TTC à la charge du vendeur
Voir le barème d'honorairesDiagnostic de performance énergétique (DPE)
Non requisIndice d'émission de gaz à effet de serre (GES)
Non requisBiens similaires

