

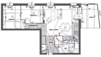
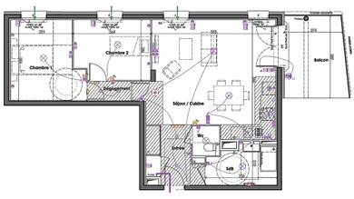
Appartement T3 avec balcon à Claix. Située Montée de la Croix Blanche à Claix, au sud de Grenoble, la résidence Effet Vercors offre un cadre de vie unique entre ville et nature, avec une vue imprenable sur le massif du Vercors. Cette résidence conjugue architecture élégante, performance énergétique et douceur de vivre au cœur d’un environnement verdoyant. Disponible 2027. Un appartement raffiné : Situé au 2 ème étage, cet appartement T3 de 70 m² environ habitables se prolonge par un balcon de 11 m² environ. - Séjour/cuisine de 32 m² environ. - Deux chambres confortables. - Salle d’eau moderne et wc séparé. - Annexes incluses : 1 cellier, 1 parking intérieur et 1 parking extérieur. De belles prestations : - Chauffage et eau chaude par pompe à chaleur individuelle vecteur air. - Grandes baies vitrées et volets roulants motorisés. - Espaces verts paysagers, jardin partagé et cheminements piétons en bois. L’art de vivre à Claix : - À 8 minutes à pied du centre-bourg, commerces et services de proximité. - Bus 21 (arrêt La Chièze) à 350 m et gare TER de Pont-de-Claix à 3 min en voiture. - Accès rapide aux autoroutes A480 et A51 vers Grenoble ou Marseille. - Écoles, collège, médiathèque et équipements sportifs à proximité. - Espaces naturels à deux pas : Parc de la Ronzy, Fort de Comboire, réserve naturelle du Peuil. N’hésitez pas à me contacter pour plus d’informations ou pour un accompagnement sur mesure. Honoraires d’agence à la charge du vendeur. Bien non soumis au DPE. Les informations sur les risques auxquels ce bien est exposé sont disponibles sur le site Géorisques : www.georisques.gouv.fr. La présente annonce immobilière a été rédigée sous la responsabilité éditoriale de M. Pierre Magerand EI (ID 86098), mandataire indépendant en immobilier (sans détention de fonds), agent commercial de la SAS I@D France immatriculé au RSAC de Cusset sous le numéro 938729175, titulaire de la carte de démarchage immobilier pour le compte de la société I@D France SAS.
Réf : 1698851-6
soit
Honoraires TTC à la charge du vendeur
Voir le barème d'honorairesDiagnostic de performance énergétique (DPE)
Non requisIndice d'émission de gaz à effet de serre (GES)
Non requisBiens similaires




Villes à proximité
Autres types de bien à Claix
Autres types de bien à proximité
Autres projets à Claix