

259 000 €
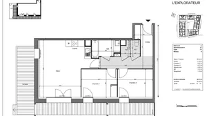
À Coupray-Bourg, découvrez ce charmant F3 au premier étage d’un petit immeuble bien entretenu et sécurisé. L’appartement offre une belle pièce de vie lumineuse de 25 m² avec cuisine ouverte, deux chambres confortables avec placard intégré, un balcon exposé Ouest pour profiter du soleil. Côté stationnement, vous bénéficiez de deux places privatives en sous-sol sécurisé avec accès direct Chauffage et production d'eau chaude individuelle (chaudière au gaz à condensation) En termes de commodités, vous apprécierez sa proximité avec Disneyland Paris et la gare RER/TGV de Marne-la-Vallée - Chessy (accès rapide à Paris) ainsi que la gare d’Esbly (ligne P). Les arrêts de bus à quelques mètres facilitent vos déplacements quotidiens. En plus de toutes les commodités, vous bénéficiez d’un cadre de vie agréable avec le parc du Château juste à côté, idéal pour les balades, ainsi que la proximité de petits sites historiques et culturels comme l’église Saint-Pierre. Vous avez donc tout à portée de main pour vous détendre et profiter du quartier. Alors à très vite pour une visite La presente annonce immobiliere vise 3 lots situés dans une copropriété de 119 lots au total et ne faisant l'objet d'aucune procédure en cours citée à l'article L. 721-1 du code de la construction et de l'habitation. Montant moyen mensuel de charges déclaré par le vendeur : 105.67€ par mois (soit 1268 € annuel). Honoraires d'agence à la charge du vendeur. Information d'affichage énergétique sur ce bien : classe ENERGIE C indice 92 et classe CLIMAT C indice 16. Les informations sur les risques auxquels ce bien est exposé, y compris l'obligation légale de débroussaillement, sont disponibles sur le site Géorisques : http://www.georisques.gouv.fr. La présente annonce immobilière a été rédigée sous la responsabilité éditoriale de Mme Sandrine Lhuillier mandataire indépendant en immobilier (sans détention de fonds), agent commercial de la SAS I@D France immatriculé au RSAC de MEAUX sous le numéro 804782902, titulaire de la carte de démarchage immobilier pour le compte de la société I@D France SAS.
Réf : 1889055
soit
Honoraires TTC à la charge du vendeur
Voir le barème d'honorairesDiagnostic de performance énergétique (DPE)
Indice d'émission de gaz à effet de serre (GES)
Biens similaires


