

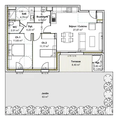
T3 en rez-de-jardin. La résidence LES JARDINS DE GUÉREINS, imaginée par AX'HOME, est une copropriété à taille humaine avec 1 seul bâtiment d'un étage, 8 appartements et 4 maisons individuelles. A seulement 30 minutes de Lyon, à 2 min de Belleville, ville dynamique qui séduit par son équilibre parfait entre ville et campagne, à 2 minutes de l'autoroute, des commerces… LES JARDINS DE GUÉREINS vous proposent cet appartement de 3 pièces avec jardin et stationnements privatifs. Vous pourrez avoir le choix des finitions (carrelage, faïence, peinture...). Norme RE2020, pour un habitat plus économe en énergie et agréable en toute saison. Programme éligible au prêt à taux 0 et frais de notaire réduits. Honoraires d’agence à la charge du vendeur. Bien non soumis au DPE. Les informations sur les risques auxquels ce bien est exposé sont disponibles sur le site Géorisques : www.georisques.gouv.fr. La présente annonce immobilière a été rédigée sous la responsabilité éditoriale de Mme Myriam Devesa EI (ID 69755), mandataire indépendant en immobilier (sans détention de fonds), agent commercial de la SAS I@D France immatriculé au RSAC de Villefranche - Tarare sous le numéro 447789744, titulaire de la carte de démarchage immobilier pour le compte de la société I@D France SAS.
Réf : 1979350-2
soit
Honoraires TTC à la charge du vendeur
Voir le barème d'honorairesDiagnostic de performance énergétique (DPE)
Non requisIndice d'émission de gaz à effet de serre (GES)
Non requisBiens similaires



Villes à proximité
Autres types de bien à Guéreins