

365 000 €
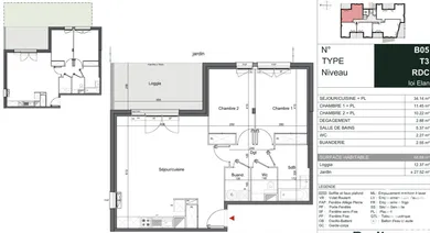
Mérignac - Arlac / Tram Peychotte Au RDC d'une résidence neuve livrée en 2026, un T3 de 69m2 environ avec un jardin de 28m2 environ et un terrasse de 12m2 environ. Il se compose d'une entrée, une pièce de vie avec cuisine aménagée, buanderie, 2 chambres, salle d'eau et wc. 1 place de parking sécurisée en sous-sol complète ce bien. Quartier recherché aux portes de Bordeaux. Prestations et matériaux de qualités : peinture lisse, volets roulants motorisés, ballon thermo, placard aménagé... Rarissime Plusieurs autres lots du T2 au T4 sont disponibles, n'hésitez pas à prendre contact avec moi. Honoraires d’agence à la charge du vendeur. Bien non soumis au DPE. Les informations sur les risques auxquels ce bien est exposé sont disponibles sur le site Géorisques : www.georisques.gouv.fr. La présente annonce immobilière a été rédigée sous la responsabilité éditoriale de M. Thibaut Faure EI (ID 35914), mandataire indépendant en immobilier (sans détention de fonds), agent commercial de la SAS I@D France immatriculé au RSAC de bordeaux sous le numéro 804099117, titulaire de la carte de démarchage immobilier pour le compte de la société I@D France SAS.
Réf : 1749020-14
soit
Honoraires TTC à la charge du vendeur
Voir le barème d'honorairesDiagnostic de performance énergétique (DPE)
Non requisIndice d'émission de gaz à effet de serre (GES)
Non requisBiens similaires




Villes à proximité
Autres types de bien à Mérignac
Autres types de bien à proximité
Autres projets à Mérignac