

307 000 €
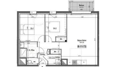
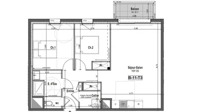
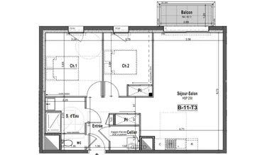
Appartement T3 avec balcon à Saint-Malo. Située rue des Antilles, au cœur d’un environnement vivant et parfaitement connecté, la résidence contemporaine Éméralia conjugue élégance architecturale et confort de vie. À proximité immédiate de l’hippodrome, des commerces, des transports, des écoles et des plages de la Côte d’Émeraude, cette adresse offre un cadre agréable à seulement quelques minutes d’Intra-Muros. Disponible 2027. Un appartement raffiné : Situé au 1 er étage, cet appartement T3 de 65 m² environ habitables se prolonge par un balcon de 3 m² environ. - Séjour/cuisine de 28 m² environ. - Deux chambres confortables. - Salle d’eau moderne. - Annexes incluses : un parking privatif De belles prestations : - Menuiseries aluminium/PVC bicolores avec vitrage isolant thermique et acoustique. - Chauffage et eau chaude par chaudière individuelle gaz à condensation. - Résidence sécurisée avec visiophone, contrôle d’accès Vigik et ascenseur. - Parkings couverts, locaux vélos et aménagements paysagers soignés. L’art de vivre à Saint-Malo : - À proximité immédiate du quartier de l’Hippodrome. - À 10 minutes à vélo des plages et de la côte d’Émeraude. - À 15 minutes à pied de la gare SNCF. - Commerces, restaurants, marché, écoles et parcs accessibles en quelques minutes. N’hésitez pas à me contacter pour plus d’informations ou pour un accompagnement sur mesure. Honoraires d’agence à la charge du vendeur. Bien non soumis au DPE. Les informations sur les risques auxquels ce bien est exposé sont disponibles sur le site Géorisques : www.georisques.gouv.fr. La présente annonce immobilière a été rédigée sous la responsabilité éditoriale de M. Pierre Magerand EI (ID 86098), mandataire indépendant en immobilier (sans détention de fonds), agent commercial de la SAS I@D France immatriculé au RSAC de Cusset sous le numéro 938729175, titulaire de la carte de démarchage immobilier pour le compte de la société I@D France SAS.
Réf : 1890513-10
soit
Honoraires TTC à la charge du vendeur
Voir le barème d'honorairesDiagnostic de performance énergétique (DPE)
Non requisIndice d'émission de gaz à effet de serre (GES)
Non requisBiens similaires


487 320 €


