

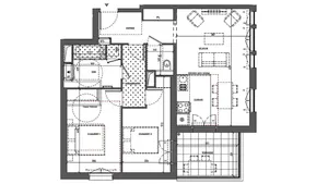
Appartement T3 avec terrasses à Serris. Située rue de Navarre, au cœur du quartier du Pré de Claye à Serris, la résidence contemporaine Whitehall conjugue élégance architecturale et qualité de vie préservée. Inspirée du style victorien, cette adresse unique propose un cadre de vie raffiné, verdoyant et apaisé, à proximité immédiate de Disneyland Paris, du centre commercial Val d’Europe et de La Vallée Village. Disponible 2027. Un appartement raffiné : Situé au 3 ème étage, cet appartement T3 de 70 m² environ habitables se prolonge par une terrasse de 7 m² environ. - Séjour/cuisine de 26 m² environ. - Deux chambres confortables et un espace configurable. - Salle de bains moderne et WC séparé. - Annexe incluse : un parking intérieur. De belles prestations : - Chauffage collectif par réseau urbain avec plancher chauffant basse température. - Volets roulants motorisés et grandes baies vitrées. - Résidence sécurisée avec ascenseur, vidéophone et parkings en sous-sol. - Cœur d’îlot paysager privatisé et architecture typiquement britannique aux finitions soignées. L’art de vivre à Serris : - À 6 min à pied de La Vallée Village et 8 min du RER A Val d’Europe. - À proximité immédiate du centre commercial Val d’Europe, des écoles et du centre aquatique. - Environnement calme, familial et verdoyant au sein du Val d’Europe Agglomération. - Accès rapide à Marne-la-Vallée – Chessy, Paris (33 min en RER) et A4. N’hésitez pas à me contacter pour plus d’informations ou pour un accompagnement sur mesure. Honoraires d’agence à la charge du vendeur. Bien non soumis au DPE. Les informations sur les risques auxquels ce bien est exposé sont disponibles sur le site Géorisques : www.georisques.gouv.fr. La présente annonce immobilière a été rédigée sous la responsabilité éditoriale de Mlle Sarah Rozière EI (ID 83696), mandataire indépendant en immobilier (sans détention de fonds), agent commercial de la SAS I@D France immatriculé au RSAC de Clermont-Ferrand sous le numéro 978616993, titulaire de la carte de démarchage immobilier pour le compte de la société I@D France SAS.
Réf : 1799116-2
soit
Honoraires TTC à la charge du vendeur
Voir le barème d'honorairesDiagnostic de performance énergétique (DPE)
Non requisIndice d'émission de gaz à effet de serre (GES)
Non requisBiens similaires



