

360 004 €
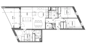
Appartement T4 de 83 m² environ – Dernier étage Situé à proximité du centre-ville tout en étant au calme, cet appartement de 82 m²environ se trouve au dernier étage d'une copropriété bien entretenue. Ce bien, nécessitant des travaux de rénovation, offre un beau potentiel pour repenser intégralement votre futur intérieur. Il se compose de la manière suivante : - Une entrée menant à un séjour de 25 m² environ ouvrant sur une loggia et un balcon filant de 22 m² environ. - Une cuisine séparée de 7,65 m² environ (possibilité d'ouverture sur le salon via une cloison). - Trois chambres, dont les surfaces varient de 10 m² environ à 12,85 m² environ, toutes avec accès à la loggia et au balcon. - Une salle de bains et des toilettes séparées. L'appartement est équipé d'huisseries en PVC, de volets roulants et de stores. Une cave ainsi qu'un garage en sous-sol complètent ce bien. La présente annonce immobilière vise 1 lot principal situé dans une copropriété formant 25 lots au total ne faisant l'objet d'aucune procédure en cours et d'un montant de charges d’environ 162 € par mois (soit 1944 € annuel) déclaré par le vendeur. Honoraires d’agence à la charge du vendeur.Information d'affichage énergétique sur ce bien : classe ENERGIE D indice 198 et classe CLIMAT B indice 7. Les informations sur les risques auxquels ce bien est exposé sont disponibles sur le site Géorisques : www.georisques.gouv.fr. La présente annonce immobilière a été rédigée sous la responsabilité éditoriale de Mlle Virginie BILIATO EI (ID 46088), mandataire indépendant en immobilier (sans détention de fonds), agent commercial de la SAS I@D France immatriculé au RSAC de Grenoble sous le numéro 883704348, titulaire de la carte de démarchage immobilier pour le compte de la société I@D France SAS. Le présent bien est commercialisé dans le cadre d'une délégation de mandat.
Réf : 1959033
soit
Honoraires TTC à la charge du vendeur
Voir le barème d'honorairesDiagnostic de performance énergétique (DPE)
Indice d'émission de gaz à effet de serre (GES)
Biens similaires



