

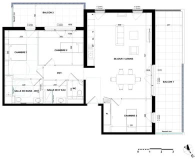
Superbe 4 pièces avec double balcon et parking – Antibes (06600) Situé dans un quartier calme et recherché d’Antibes, ce magnifique appartement 4 pièces au 4? étage offre un confort de vie rare grâce à ses volumes généreux, sa luminosité naturelle et ses deux grands balcons totalisant 35,3 m² environ. Ce bien est idéal pour une famille ou un investissement locatif haut de gamme sur un secteur porteur. D’une surface habitable de 92,5 m² environ, il se compose de : • Un séjour-cuisine spacieux de 41,3 m² environ, • Trois chambres confortables de 12,05 m² environ, 11,55 m² environ et 11,15 m² environ, • Une salle de bains avec WC de 6,45 m² environ, • Une salle d’eau supplémentaire de 3,95 m² environ, • Un dégagement pratique de 4,20 m² environ et un WC indépendant de 1,85 m² environ. L’appartement bénéficie d’une exposition sud-est, assurant une belle luminosité toute la journée, et s’ouvre sur deux balcons accessibles depuis le séjour et les chambres. Une place de parking privative en sous-sol complète ce bien. Le chauffage électrique individuel permet une gestion simple et maîtrisée des charges. ________________________________________ ???? Informations financières • Prix de vente : 719 000 € • Frais de notaire à la charge du vendeur • Surface habitable : 92,5 m² environ • Surface extérieure : 35,3 m² environ (2 balcons) • Stationnement : 1 place privative en sous-sol ________________________________________ ???? Rentabilité locative estimée Avec un loyer de marché estimé autour de 1 480 € par mois, ce bien présente une rentabilité brute d’environ 2,5 %. Son emplacement stratégique à proximité des commerces, des écoles et de Sophia-Antipolis garantit une demande locative solide, ainsi qu’une valorisation patrimoniale à long terme. ________________________________________ ?? Les points forts • Séjour spacieux de plus de 41 m² environ • Deux balcons totalisant plus de 35 m² environ • Trois chambres confortables • Deux salles d’eau + WC séparé, un vrai atout pour la vie de famille • Parking sécurisé en sous-sol inclus • Frais de notaire à la charge du vendeur • Exposition sud-est offrant une belle luminosité • Excellent rapport surface / confort / emplacement Honoraires d’agence à la charge du vendeur. Bien non soumis au DPE. Les informations sur les risques auxquels ce bien est exposé sont disponibles sur le site Géorisques : www.georisques.gouv.fr. La présente annonce immobilière a été rédigée sous la responsabilité éditoriale de Mlle Judicaelle Louis EI (ID 92421), mandataire indépendant en immobilier (sans détention de fonds), agent commercial de la SAS I@D France immatriculé au RSAC de DRAGUIGNAN sous le numéro 811245687, titulaire de la carte de démarchage immobilier pour le compte de la société I@D France SAS.
Réf : 1863394-27
soit
Honoraires TTC à la charge du vendeur
Voir le barème d'honorairesDiagnostic de performance énergétique (DPE)
Non requisIndice d'émission de gaz à effet de serre (GES)
Non requisBiens similaires



