

249 000 €
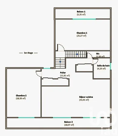
___ 59/89 AV DE PARIS, ___ QUARTIER RECHERCHÉ DU PARC DU RANCY, Appartement de type F4 à rafraichir SANS CHARGES offrant un potentiel incroyable idéale pour les investisseurs ou les amateurs de rénovation.... comprenant : Au rez-de-chaussée : une entrée de 8m ² A l'étage : un palier distribuant une 1ere chambre de 25m ² donnant sur balcon avec vue dégagée, une cuisine ouverte sur le séjour/salle a manger de 31m ² avec une terrasse de 18m ² SANS AUCUN VIS A VIS, une 2eme chambre de 18m ², un dégagement avec placards, une salle de bains avec fenêtre, et WC séparés. ___ PROCHE DE TOUTES COMMODITÉS, commerces, écoles, transports (métro L8 à 10min en bus ou 20min à pied). ___ PAS DE GARAGE ___ Rafraichissement à prévoir. ___ EXPOSITION EST/OUEST. ___ DOUBLE VITRAGE. ___ TAXE FONCIERE : 1800 EUROS La presente annonce immobiliere vise 1 lot situé dans une copropriété de 2 lots au total et ne faisant l'objet d'aucune procédure en cours citée à l'article L. 721-1 du code de la construction et de l'habitation. Montant moyen mensuel de charges déclaré par le vendeur : 0€ par mois (soit 0 € annuel). Honoraires d'agence à la charge du vendeur. Information d'affichage énergétique sur ce bien : classe ENERGIE E indice 240 et classe CLIMAT E indice 52. Les informations sur les risques auxquels ce bien est exposé, y compris l'obligation légale de débroussaillement, sont disponibles sur le site Géorisques : http://www.georisques.gouv.fr. La présente annonce immobilière a été rédigée sous la responsabilité éditoriale de Mme Fatiha El Idrissi mandataire indépendant en immobilier (sans détention de fonds), agent commercial de la SAS I@D France immatriculé au RSAC de CRETEIL sous le numéro 410 896 633, titulaire de la carte de démarchage immobilier pour le compte de la société I@D France SAS.
Réf : 1832418
soit
Honoraires TTC à la charge du vendeur
Voir le barème d'honorairesDiagnostic de performance énergétique (DPE)
Indice d'émission de gaz à effet de serre (GES)
Biens similaires



