

514 000 €
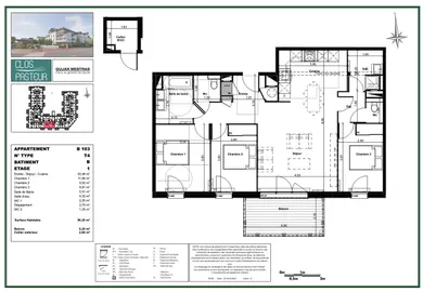
=== FRAIS NOTAIRE OFFERTS jusqu'au 31 mars 2026 === OPPORTUNITÉ -T4 - Résidence "CLOS PASTEUR" à GUJAN-MESTRAS Résidence « CLOS PASTEUR », une architecture balnéaire majestueuse sur le bassin d'ARCACHON. 4 pièces de 90 m2 environ, R+1, 3 chambres, Balcon de 9 m2 environ, Cellier extérieur 3m² environ, 2 places de parking au sous-sol, Frais de notaire estimés à 18 500 euros en moyenne. Vous l'avez rêvé, ne manquez pas de concrétiser votre projet, profitez en famille de cette opportunité à GUJAN-MESTRAS où se conjuguent douceur de vie et territoire attractif. La résidence "CLOS PASTEUR", logements à l’accession libre, lumineux et confortables, dans un cadre idéal où tout est pensé pour que vous puissiez jouir de logements aux nombreux avantages. Règlementation Environnementale RE 2020. Livraison prévisionnelle 2eme T 2026. Contactez-moi pour en savoir plus et réserver ! Honoraires d’agence à la charge du vendeur. Bien non soumis au DPE. Les informations sur les risques auxquels ce bien est exposé sont disponibles sur le site Géorisques : www.georisques.gouv.fr. La présente annonce immobilière a été rédigée sous la responsabilité éditoriale de M. Stéphane Larroza EI (ID 87020), mandataire indépendant en immobilier (sans détention de fonds), agent commercial de la SAS I@D France immatriculé au RSAC de BORDEAUX sous le numéro 893342824, titulaire de la carte de démarchage immobilier pour le compte de la société I@D France SAS.
Réf : 1905566-15
soit
Honoraires TTC à la charge du vendeur
Voir le barème d'honorairesDiagnostic de performance énergétique (DPE)
Non requisIndice d'émission de gaz à effet de serre (GES)
Non requisBiens similaires




Villes à proximité
Autres types de bien à Gujan-Mestras
Autres types de bien à proximité
Autres projets à Gujan-Mestras