

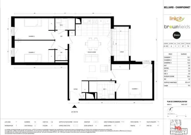
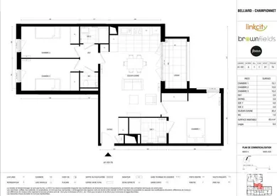
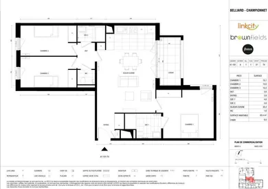
Au cœur du quartier Championnet, ce T4 de 83,4 m² environ offre un cadre de vie recherché pour une famille recomposée qui souhaite de l’espace, une vraie organisation des pièces et un environnement vivant où l’on trouve cafés, commerces de proximité et lieux culturels à quelques minutes à pied. L’adresse permet un quotidien simple et mobile. Les stations Jules Joffrin et Porte de Clignancourt, ainsi que les lignes de bus du secteur, facilitent les déplacements vers l’ensemble de Paris. Les écoles, les squares et les services du 18e sont accessibles en quelques instants, ce qui crée un rythme de vie adapté aux familles. L’entrée distribue un grand séjour de 30,4 m² environ où la lumière circule largement. C’est un espace qui permet d’installer plusieurs usages : coin repas, espace salon, zone de jeux ou bureau partagé. La cuisine ouverte accompagne naturellement la vie familiale et les moments passés ensemble. Les trois chambres sont réparties de manière à préserver l’intimité de chacun. La chambre principale de 16,1 m² environ offre un volume confortable pour aménager rangements et coin nuit. Les deux autres chambres, de 10,6 m² environ et 10,4 m² environ, conviennent parfaitement à des enfants, avec la possibilité d’y installer un bureau pour les devoirs ou un espace plus personnel selon les besoins. Les deux salles d’eau facilitent l’organisation quotidienne d’un foyer recomposé, en évitant les temps d’attente matinaux. La loggia de 6 m² environ prolonge le séjour. C’est un espace extérieur agréable pour prendre un café, laisser les enfants jouer dehors tout en restant à l’abri ou simplement profiter d’un moment au calme. L’isolation performante du bâtiment et le chauffage collectif urbain assurent un confort thermique constant, avec une sensation de calme appréciable dans les pièces de nuit comme dans les espaces de vie. Les accès sont sécurisés et les parties communes entretenues avec soin. Pour découvrir le plan détaillé ou obtenir plus d’informations, je suis disponible. Honoraires d’agence à la charge du vendeur. Bien non soumis au DPE. Les informations sur les risques auxquels ce bien est exposé sont disponibles sur le site Géorisques : www.georisques.gouv.fr. La présente annonce immobilière a été rédigée sous la responsabilité éditoriale de M. Cyrille Figureau EI (ID 76688), mandataire indépendant en immobilier (sans détention de fonds), agent commercial de la SAS I@D France immatriculé au RSAC de Clermont -Ferrand sous le numéro 521703322, titulaire de la carte de démarchage immobilier pour le compte de la société I@D France SAS.
Réf : 1893671-4
soit
Honoraires TTC à la charge du vendeur
Voir le barème d'honorairesDiagnostic de performance énergétique (DPE)
Non requisIndice d'émission de gaz à effet de serre (GES)
Non requisBiens similaires



