

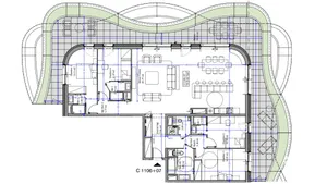
Appartement T5 avec terrasse plein sud – Aix-les-Bains Lumière. Espace. Calme absolu. Cet appartement d’exception de plus de 145 m² environ s’élève au 10? étage, face au Sud, dominant la ville et les reliefs d’Aix-les-Bains. Dès l’entrée, la sensation d’espace est immédiate. Le séjour-cuisine s’ouvre sur une terrasse plein ciel de près de 70 m² environ, un lieu de vie à part entière où chaque moment de la journée devient un tableau : le café du matin au soleil, le dîner d’été sous les lumières de la ville. L’agencement a été pensé comme une maison suspendue : quatre chambres dont une suite parentale avec dressing et salle d’eau, un vaste espace de réception, une buanderie et des rangements discrets. Les finitions se distinguent par leur élégance : matériaux nobles, menuiseries aluminium, confort thermique par géothermie naturelle. L’exposition sud assure une lumière constante et chaleureuse, magnifiant les volumes et les perspectives. L’ensemble est prolongé par un box fermé et un parking intérieur sécurisé, directement accessibles par ascenseur. À deux pas du centre historique, entre lac et montagnes, ce bien rare conjugue architecture contemporaine et douceur de vivre. Un appartement à vivre, à contempler, à transmettre. Plan disponible sur demande Honoraires d’agence à la charge du vendeur. Bien non soumis au DPE. Les informations sur les risques auxquels ce bien est exposé sont disponibles sur le site Géorisques : www.georisques.gouv.fr. La présente annonce immobilière a été rédigée sous la responsabilité éditoriale de M. Sulyvan Pereira EI (ID 88628), mandataire indépendant en immobilier (sans détention de fonds), agent commercial de la SAS I@D France immatriculé au RSAC de CLERMONT FERRAND sous le numéro 944429612, titulaire de la carte de démarchage immobilier pour le compte de la société I@D France SAS.
Réf : 1885735-2
soit
Honoraires TTC à la charge du vendeur
Voir le barème d'honorairesDiagnostic de performance énergétique (DPE)
Non requisIndice d'émission de gaz à effet de serre (GES)
Non requisBiens similaires




Villes à proximité
Autres types de bien à Aix-les-Bains
Autres types de bien à proximité