
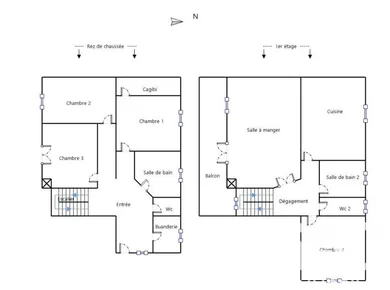
Avenue Léon JOUHAUX - DOLE Spacieux DUPLEX de 130m2 Comprenant - Au premier niveau : // Cuisine récente HYPER EQUIPEE (fours, chauffe plats, cuisinière, grill encastré ...), // SALON / SEJOUR et son BALCON + TERRASSE , // SALLE D'EAU moderne, // une CHAMBRE, WC, palier. - Au rez de chaussée : // 3 CHAMBRES (dont une avec possibilité DRESSING et une avec TERRASSE), // une salle de BAINS, WC, // CHAUFFERIE BUANDERIE (CHAUDIERE GAZ NEUVE 01/26, ADOUCISSEUR D'EAU), abris de jardin. Le tout agrémenté d'un petit TERRAIN isolé de la rue et de la vue des voisins, 2 PLACES DE PARKING, Dans Résidence fermée de seulement 2 Logements. Construction de 2003, Parquets, murs, menuiseries, toiture, électricité ... en PARFAIT ÉTAT. Vous n'avez qu'à emménager ! Ne tardez pas si vous souhaitez en profiter au printemps ! Honoraires d'agence à la charge du vendeur. Information d'affichage énergétique sur ce bien : classe ENERGIE D indice 147 et classe CLIMAT D indice 31. Les informations sur les risques auxquels ce bien est exposé, y compris l'obligation légale de débroussaillement, sont disponibles sur le site Géorisques : http://www.georisques.gouv.fr. La présente annonce immobilière a été rédigée sous la responsabilité éditoriale de Mme Lauriane Lehmann mandataire indépendant en immobilier (sans détention de fonds), agent commercial de la SAS I@D France immatriculé au RSAC de Lons-le-Saunier sous le numéro 504332438, titulaire de la carte de démarchage immobilier pour le compte de la société I@D France SAS.
Réf : 1852056
soit
Honoraires TTC à la charge du vendeur
Voir le barème d'honorairesDiagnostic de performance énergétique (DPE)
Indice d'émission de gaz à effet de serre (GES)