

220 000 €
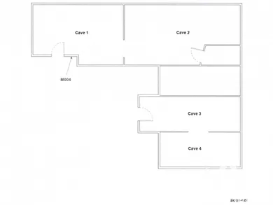
Au sein du centre historique de Vétheuil, cet immeuble d'environ 200 m² habitable, daté des années 1800. Une rénovation des lieux est à prévoir, offrant un cadre idéal pour un investissement locatif de qualité ou une configuration mixte habitation / activité. RDC : local commercial comprenant de 2 pièces ; 1 bureau, 1 atelier et 1 petit balcon vue sur la cour privative et l’Église de Vétheuil. 1ère étage : 4 belles pièces lumineuses grâce à leur double exposition. Possibilité de créer un appartement indépendant (conduits et canalisations existants). Grenier aménageable : dont la surface permet la création d'un second appartement. Le tout est complété par 4 caves voûtées accessibles par la cour privative, offrant un beau potentiel d’aménagement / rangement au niveau extérieur. Une véritable indépendance est possible entre une activité commerciale au RDC et locative aux étages grâce à un accès à l’arrière de l’immeuble, permettant de circuler sans passer par l’entrée principale. Deux escaliers sont situés aux extrémités garantissent une autonomie complète, tant à l’intérieur qu’à l’extérieur du bien. Une visite s'impose pour contempler pleinement le potentiel de ce bien unique. Honoraires d'agence à la charge du vendeur. Information d'affichage énergétique sur ce bien : classe ENERGIE C indice 166 et classe CLIMAT F indice 46. Les informations sur les risques auxquels ce bien est exposé, y compris l'obligation légale de débroussaillement, sont disponibles sur le site Géorisques : http://www.georisques.gouv.fr. La présente annonce immobilière a été rédigée sous la responsabilité éditoriale de Mme Estelle Minatel mandataire indépendant en immobilier (sans détention de fonds), agent commercial de la SAS I@D France immatriculé au RSAC de VERSAILLES sous le numéro 988621926, titulaire de la carte de démarchage immobilier pour le compte de la société I@D France SAS.
Réf : 1946140
soit
Honoraires TTC à la charge du vendeur
Voir le barème d'honorairesDiagnostic de performance énergétique (DPE)
Indice d'émission de gaz à effet de serre (GES)
Biens similaires

Villes à proximité
Autres types de bien à Vétheuil
Autres types de bien à proximité