

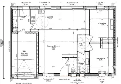
EN COURS DE CONSTRUCTION -- Maison neuve -- plain pied -- garage -- située à Orouet dans un cadre tranquille. Elle se compose d'une agréable pièce de vie d'environ 40 m2 avec cuisine aménagée et équipée, cellier / buanderie donnant accès au garage, 2 chambres avec placard, une salle d'eau et wc. Chauffage au sol par PAC, terrasse en bois, terrain clos, livrable en fin d'année. Bénéficiez des frais de notaire réduits pour cette acquisition ! Honoraires d'agence à la charge du vendeur. Information d'affichage énergétique sur ce bien : classe ENERGIE A indice 57 et classe CLIMAT A indice 1. Les informations sur les risques auxquels ce bien est exposé, y compris l'obligation légale de débroussaillement, sont disponibles sur le site Géorisques : http://www.georisques.gouv.fr. La présente annonce immobilière a été rédigée sous la responsabilité éditoriale de Mme Emilie Milcent mandataire indépendant en immobilier (sans détention de fonds), agent commercial de la SAS I@D France immatriculé au RSAC de LA ROCHE SUR YON sous le numéro 909731820, titulaire de la carte de démarchage immobilier pour le compte de la société I@D France SAS.
Réf : 1791616
soit
Honoraires TTC à la charge du vendeur
Voir le barème d'honorairesDiagnostic de performance énergétique (DPE)
Indice d'émission de gaz à effet de serre (GES)
Biens similaires


320 000 €


263 000 €


313 000 €
