

403 000 €
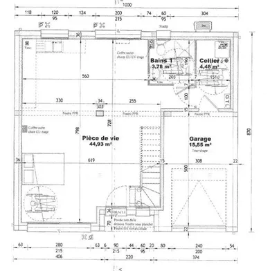
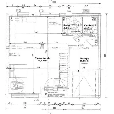
Programme de 5 maisons neuves de 118m² environ, livraison prévue 2éme semestre 2027 Maison contemporaine de 118 m² environ en construction proche des écoles Au rez-de-chaussée, un vaste séjour lumineux de 44m² environ s'ouvre sur une cuisine moderne à aménager selon votre goût. Vous trouverez également une salle de bain, un cellier idéale pour le rangement et un garage . A l'étage, la maison offre trois chambres accueillantes, une salle de bain , WC, et Une suite parentale, offrant intimité et confort avec sa salle de bain privative. Chaque espace a été conçu pour maximiser la lumière naturelle et votre bien être La maison sera livrée hors cuisine, peinture, sanitaire et carrelage Venez découvrir votre future maison !! Honoraires d’agence à la charge du vendeur. Bien non soumis au DPE. Les informations sur les risques auxquels ce bien est exposé sont disponibles sur le site Géorisques : www.georisques.gouv.fr. La présente annonce immobilière a été rédigée sous la responsabilité éditoriale de Mlle Nathalie Beels EI (ID 24463), mandataire indépendant en immobilier (sans détention de fonds), agent commercial de la SAS I@D France immatriculé au RSAC de MEAUX sous le numéro 524436276, titulaire de la carte de démarchage immobilier pour le compte de la société I@D France SAS.
Réf : 1950723-2
soit
Honoraires TTC à la charge du vendeur
Voir le barème d'honorairesDiagnostic de performance énergétique (DPE)
Non requisIndice d'émission de gaz à effet de serre (GES)
Non requisBiens similaires




Villes à proximité