

516 000 €
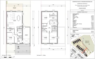
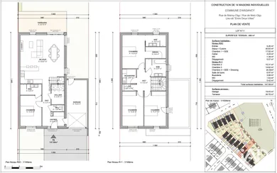
Opportunité à ne pas manquer ! Programme neuf sur la commune d'Argancy. Venez découvrir cette maison de 147 m2 environ, aux prestations de qualité et volumes généreux. - agencement intérieur modulables - extérieurs terminés - prix ajusté en fonction des modifications Vous cherchez un cadre de vie paisible, une maison contemporaine et un projet maitrisé de A à Z ? Cette maison est faite pour vous ! N'hésitez pas à me contacter pour plus d'informations. Honoraires d’agence à la charge du vendeur. Bien non soumis au DPE. Les informations sur les risques auxquels ce bien est exposé sont disponibles sur le site Géorisques : www.georisques.gouv.fr. La présente annonce immobilière a été rédigée sous la responsabilité éditoriale de Mlle Amandine Plano EI (ID 43019), mandataire indépendant en immobilier (sans détention de fonds), agent commercial de la SAS I@D France immatriculé au RSAC de Thionville sous le numéro 879407740, titulaire de la carte de démarchage immobilier pour le compte de la société I@D France SAS.
Réf : 1973310-11
soit
Honoraires TTC à la charge du vendeur
Voir le barème d'honorairesDiagnostic de performance énergétique (DPE)
Non requisIndice d'émission de gaz à effet de serre (GES)
Non requisBiens similaires




Villes à proximité
Autres types de bien à Argancy
Autres types de bien à proximité