

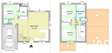
Opportunité Rare 114000€ LLUPIA Terrain Constructible de 369m² - Exposition Idéale Sud-Ouest A proximité immédiate de Thuir, ce terrain de 369 m2 de construction libre en 3 faces est déjà viabilisé. Le projet aux normes RE 2020 peut-être adapté à vos goûts et besoins spécifiques. Son emplacement privilégié vous permettra de profiter d'un cadre de vie paisible tout en restant proche des commodités du quotidien. Contactez-moi pour des informations complémentaires et organiser une visite sur place. Honoraires d'agence à la charge du vendeur. Bien non soumis au DPE. Les informations sur les risques auxquels ce bien est exposé, y compris l'obligation légale de débroussaillement, sont disponibles sur le site Géorisques : http://www.georisques.gouv.fr. La présente annonce immobilière a été rédigée sous la responsabilité éditoriale de Mme Christine Carval mandataire indépendant en immobilier (sans détention de fonds), agent commercial de la SAS I@D France immatriculé au RSAC de Perpignan sous le numéro 478946049, titulaire de la carte de démarchage immobilier pour le compte de la société I@D France SAS.
Réf : 1950149
soit
Honoraires TTC à la charge du vendeur
Voir le barème d'honorairesDiagnostic de performance énergétique (DPE)
Non requisIndice d'émission de gaz à effet de serre (GES)
Non requisBiens similaires




Villes à proximité
Autres types de bien à Llupia
Autres types de bien à proximité
Autres projets à Llupia