

87 450 €
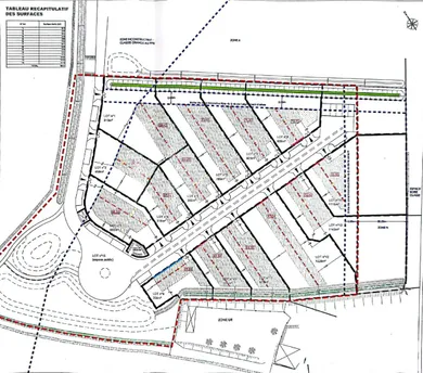
TERRAIN A BÂTIR VIABILISE a vendre dans la commune de VALMONT. Dans le cadre de l'aménagement d'un lotissement de 14 lots de terrains à bâtir , ce lot de 626m² environ est disponible à acheter entièrement viabilisé. Pour chaque lot : - Viabilisation des parcelles pour l'ensemble des réseaux ( électricité, télécommunications, AEP, eaux usées et pluviales) avec intégration des coffrets électriques dans la clôture et la haie. - Fourniture d'une cuve béton de récupération des eaux de pluies - Fourniture et pose d'une clôture et haie entre les limites privées et public de chaque parcelle. - Fourniture et pose d'un portail. -Entrée charretière en béton. Me contacter par téléphone pour vous positionner. Pas sérieux s'abstenir. Honoraires d’agence à la charge du vendeur. Bien non soumis au DPE. Les informations sur les risques auxquels ce bien est exposé sont disponibles sur le site Géorisques : www.georisques.gouv.fr. La présente annonce immobilière a été rédigée sous la responsabilité éditoriale de M. Jérôme GUYOT EI (ID 22706), mandataire indépendant en immobilier (sans détention de fonds), agent commercial de la SAS I@D France immatriculé au RSAC de LE HAVRE sous le numéro 828520049, titulaire de la carte de démarchage immobilier pour le compte de la société I@D France SAS.
Réf : 1166594-8
soit
Honoraires TTC à la charge du vendeur
Voir le barème d'honorairesDiagnostic de performance énergétique (DPE)
Non requisIndice d'émission de gaz à effet de serre (GES)
Non requisBiens similaires




Villes à proximité
Autres types de bien à La Celle-sous-Gouzon
Autres types de bien à proximité