

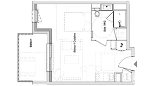
Appartement T1 avec balcon à Riom. Située au cœur de l’écoquartier de l’Ambène, dans un environnement moderne et verdoyant, la résidence contemporaine Les Rives de l’Ambène conjugue élégance architecturale et confort de vie. À proximité des commerces, des transports, des bassins de vie et des espaces naturels, cette adresse offre un cadre paisible et qualitatif à seulement quelques minutes du centre de Riom et de Clermont-Ferrand. Disponible 2027. Un appartement raffiné : Situé au 3 ème étage, cet appartement T1 de 31 m² environ habitables se prolonge par un balcon de 7 m² environ. - Pièce de vie de 26 m² environ. - Salle d’eau moderne. De belles prestations : - Chauffage et production d’eau chaude via système collectif. - Menuiseries extérieures avec double vitrage isolant, volets roulants électriques. - Résidence sécurisée avec visiophone, contrôle d’accès Vigik et ascenseur. - Locaux vélos sécurisés, espaces paysagers, sous-sols aménagés. L’art de vivre aux Rives de l’Ambène : - À deux pas des commerces et services du quartier. - À proximité des axes majeurs vers Clermont-Ferrand. - Environnement paisible, moderne et parfaitement desservi. - Accès rapide aux zones d’activités, écoles et transports. N’hésitez pas à me contacter pour plus d’informations ou pour un accompagnement sur mesure. Honoraires d’agence à la charge du vendeur. Bien non soumis au DPE. Les informations sur les risques auxquels ce bien est exposé sont disponibles sur le site Géorisques : www.georisques.gouv.fr. La présente annonce immobilière a été rédigée sous la responsabilité éditoriale de M. Pierre Magerand EI (ID 86098), mandataire indépendant en immobilier (sans détention de fonds), agent commercial de la SAS I@D France immatriculé au RSAC de Cusset sous le numéro 938729175, titulaire de la carte de démarchage immobilier pour le compte de la société I@D France SAS.
Ref: 1889902-2
of
Fees incl. VAT payable by the seller
See the fees scaleEnergy performance diagnosis
Not requiredGreenhouse gas emission index
Not requiredSimilar properties



