

€165,792
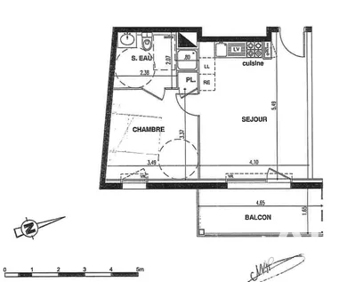
À Angers, dans un secteur recherché pour son calme et son cadre de vie, découvrez cet appartement T2 de 38,36 m², situé au sein d’une résidence récente de 2012 (Bouygues Immobilier). La résidence est sécurisée et dispose d’un ascenseur. L’accès aux parties communes (intérieur comme extérieur) se fait via interphone et digicode. Le parking est également sécurisé par digicode. Le quartier, agréable et bien entretenu, offre une bonne desserte par le tramway (secteur Lycée Jean Moulin) et se situe à proximité des bords de Maine, des commerces et des services. L’appartement présente un agencement fonctionnel et un très bon état général, sans travaux à prévoir. La pièce de vie, lumineuse, s’ouvre sur un balcon sans vis-à-vis, avec une vue dégagée en direction de la Maine. Une place de stationnement couverte complète le bien, un atout appréciable dans le secteur. Caractéristiques : ✔ Résidence récente et sécurisée ✔ Ascenseur ✔ Appartement moderne et fonctionnel, en très bon état ✔ Sans vis-à-vis, vue dégagée ✔ Balcon ✔ Parking couvert sécurisé
Ref: 1928597
of
Fees incl. VAT payable by the seller
See the fees scaleEnergy performance diagnosis
Greenhouse gas emission index
Similar properties



