

€179,000
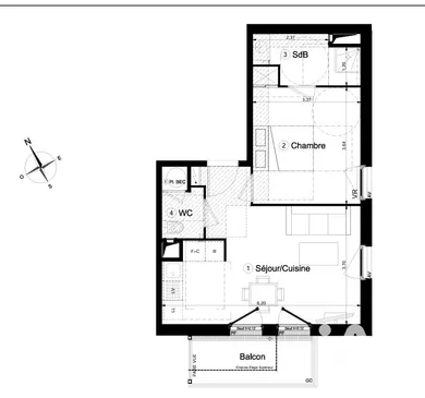
T2 avec balcon meublé & loué + Double place de parking en sous-sol. A 810m du RER Roissy (13 mns à pied) Rendement locatif brut : 5,86% Rendement Net net : 4,18% Loué meublé (bail de un an) 875€ par mois CC Flux de Trésorerie Immédiat : L'appartement est déjà loué, assurant une rentrée d'argent dès la signature. Zéro Travaux : Construction 2021 (sous garantie décennale). Faibles charges de copropriété garanties par l'excellente performance énergétique. Cet appartement de 42,66m² situé au premier étage avec ascenseur, de 2 pièces offre un cadre de vie moderne et confortable, idéal pour un premier achat ou pour un investissement locatif. Lumineux, cet appartement se compose d'une entrée, une pièce de vie de 23m² avec sa cuisine ouverte équipée & aménagée, un agréable balcon (orienté SUD) de 5.7m² offrant un espace extérieur privilégié pour se détendre. Une SUITE PARENTALE de 12,8m² avec son dressing et sa salle d'eau carrelée, une toilette séparée. La résidence dispose de nombreux équipements modernes pour votre confort au quotidien : fibre optique, accès PMR, VMC, sécurisé avec digicode, interphone et vidéo surveillance pour le parking en sous-sol. Vous bénéficiez également d'un chauffage individuel électrique thermodynamique avec distribution par radiateurs . Deux places de parking sont incluses pour stationner en toute tranquillité. La presente annonce immobiliere vise 2 lots situés dans une copropriété de 326 lots au total et ne faisant l'objet d'aucune procédure en cours citée à l'article L. 721-1 du code de la construction et de l'habitation. Montant moyen mensuel de charges déclaré par le vendeur : 75.18€ par mois (soit 902.16 € annuel). Honoraires d'agence à la charge du vendeur. Information d'affichage énergétique sur ce bien : classe ENERGIE C indice 117 et classe CLIMAT A indice 3. Les informations sur les risques auxquels ce bien est exposé, y compris l'obligation légale de débroussaillement, sont disponibles sur le site Géorisques : http://www.georisques.gouv.fr. La présente annonce immobilière a été rédigée sous la responsabilité éditoriale de Mme Claire Puissant mandataire indépendant en immobilier (sans détention de fonds), agent commercial de la SAS I@D France immatriculé au RSAC de CRETEIL sous le numéro 801765264, titulaire de la carte de démarchage immobilier pour le compte de la société I@D France SAS.
Ref: 1906526
of
Fees incl. VAT payable by the seller
See the fees scaleEnergy performance diagnosis
Greenhouse gas emission index
Similar properties



