

€223,000
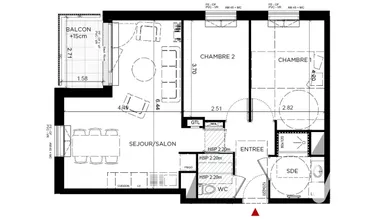
En Exclusivité, opportunité appartement T3 comme neuf revendu pour mutation professionnelle, très faibles charges, de 58m² au 2ème étage, 2 chambres, avec balcon, garage privatif couvert, au calme, et idéalement situé dans les hauts de St- Aubin, au sein d’une résidence de 2023 et présentant de vrais atouts évidents : 1/ Environnement et extérieurs : - Plateau des Capucins des Hauts de Saint-Aubin. - Arrêt tramway hauts de Saint-Aubin à 100m (la proximité sans le bruit !) ligne A (accès immédiat CHU, université, centre-ville). - Place de la Fraternité à 100m, tous commerces immédiats. - Proximité immédiate Parc Bocquel et coulée verte. - Résidence parfaitement entretenue aux espaces communs de standing. - Appartement très lumineux avec double exposition, balcon protégé orienté Sud et Ouest. - Place de parking privative couverte et sécurisée avec accès ascenseur. 2/ Agencement et équipements : - Espace vie composé d’une entrée avec placard, WC indépendant, donnant sur grande pièce à vivre très lumineuse avec cuisine neuve aménagée et équipée et coin salon donnant sur un joli balcon aux proportions fonctionnelles permettant largement de s’installer à 4. - Coin nuit avec 2 belles chambres en pignon et une salle d’eau équipée notamment d’une douche moderne avec receveur extra plat et coin buanderie. - Radiateurs muraux alimentés par chauffage collectif Biomasse (réseau de chaleur urbain) donc pas de chaudière d’abonnements et d’entretien, participant à des charges très faibles: 1156€ par an incluant tout sauf l’électricité. - Vidéo surveillance et sécurisation des entrées. - Normes PMR: Personnes à Mobilité Réduite. Vous apprécierez l’emplacement idéal, l’état neuf, et la qualité de cette résidence ! La presente annonce immobiliere vise 2 lots situés dans une copropriété de 121 lots au total et ne faisant l'objet d'aucune procédure en cours citée à l'article L. 721-1 du code de la construction et de l'habitation. Montant moyen mensuel de charges déclaré par le vendeur : 96.33€ par mois (soit 1156 € annuel). Honoraires d'agence à la charge du vendeur. Information d'affichage énergétique sur ce bien : classe ENERGIE B indice 84 et classe CLIMAT B indice 9. Les informations sur les risques auxquels ce bien est exposé, y compris l'obligation légale de débroussaillement, sont disponibles sur le site Géorisques : http://www.georisques.gouv.fr. La présente annonce immobilière a été rédigée sous la responsabilité éditoriale de M Frédéric Lemaire mandataire indépendant en immobilier (sans détention de fonds), agent commercial de la SAS I@D France immatriculé au RSAC de Angers sous le numéro 824726152, titulaire de la carte de démarchage immobilier pour le compte de la société I@D France SAS.
Ref: 1981742
of
Fees incl. VAT payable by the seller
See the fees scaleEnergy performance diagnosis
Greenhouse gas emission index
Similar properties




Nearby towns
Others property types in Angers
Others property types nearby
Other projects in Angers