

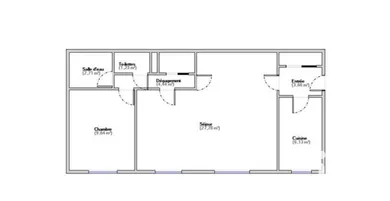
Grand F2 avec double séjour situé dans un immeuble de 6 étages avec ASCENSEUR et GARDIEN, résidence de standing fermée et sécurisée, bel appartement au 5eme étage composé d'une entrée avec placard desservant un séjour/salle à mangé, une cuisine semi-ouverte, un dégagement avec rangements, 1 chambre (2eme possible), WC séparés et une salle d'eau + une cave. ___ CRÉTEIL VILLAGE/ÉGLISE à 2min, ___ Avenue Verdun, ___ Metro Créteil Université à 1km, (5min en TVM) ___ Gare RER A Saint-Maur Créteil à 1.4km, (7min en TVM) ___ Écoles / collège VICTOR HUGO à 300m, ___ Stationnement libre dans la résidence. ___ Taxe foncière 1500 ___ DOUBLE VITRAGE ___ EXPOSITION OUEST ___ Vue dégagée ___ DE NOMBREUX RANGEMENTS ___ A86 à 5 min, ... ___ Conseiller disponible 7j/7 La presente annonce immobiliere vise 2 lots situés dans une copropriété de 106 lots au total et ne faisant l'objet d'aucune procédure en cours citée à l'article L. 721-1 du code de la construction et de l'habitation. Montant moyen mensuel de charges déclaré par le vendeur : 300€ par mois (soit 3600 € annuel). Honoraires d'agence à la charge du vendeur. Information d'affichage énergétique sur ce bien : classe ENERGIE D indice 159 et classe CLIMAT D indice 48. Les informations sur les risques auxquels ce bien est exposé, y compris l'obligation légale de débroussaillement, sont disponibles sur le site Géorisques : http://www.georisques.gouv.fr. La présente annonce immobilière a été rédigée sous la responsabilité éditoriale de Mme Fatiha El Idrissi mandataire indépendant en immobilier (sans détention de fonds), agent commercial de la SAS I@D France immatriculé au RSAC de CRETEIL sous le numéro 410 896 633, titulaire de la carte de démarchage immobilier pour le compte de la société I@D France SAS.
Ref: 1876006
of
Fees incl. VAT payable by the seller
See the fees scaleEnergy performance diagnosis
Greenhouse gas emission index
Similar properties



