

€229,000
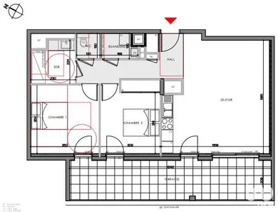
Très beau T3 à Eybens, éligible Prêt à Taux Zéro. Frais de notaire réduits (environ 2,5%). Livraison imminente : décembre 2025 ! Résidence haut de gamme, sécurisée. Aux prestations énergétiques qualitatives (RT2012-20%) Très belles prestations : - Carrelage 60x60cm - Peinture sur tous les murs - Faïence dans la SDE - Chauffage individuel gaz - Locaux vélos Garage privatif en sous-sol en sus du prix : 16 000€ Pour les investisseurs : - le loyer nu prévisionnel HC est de 800€ - le loyer LMNP prévisionnel HC est de 860€ Accessibilité : Piste cycle et bus à 2 pas de la résidence Ecoles, piscine, restaurants, commerces (boulangerie-patisserie, bureau de poste, boucherie…)… sont facilement accessibles à pied. Contactez moi pour toute information complémentaire et visite. Honoraires d’agence à la charge du vendeur. Bien non soumis au DPE. Les informations sur les risques auxquels ce bien est exposé sont disponibles sur le site Géorisques : www.georisques.gouv.fr. La présente annonce immobilière a été rédigée sous la responsabilité éditoriale de Mlle Marie-Rose Gilles EI (ID 83761), mandataire indépendant en immobilier (sans détention de fonds), agent commercial de la SAS I@D France immatriculé au RSAC de GRENOBLE sous le numéro 478110612, titulaire de la carte de démarchage immobilier pour le compte de la société I@D France SAS.
Ref: 1866358-3
of
Fees incl. VAT payable by the seller
See the fees scaleEnergy performance diagnosis
Not requiredGreenhouse gas emission index
Not requiredSimilar properties




Nearby towns
Others property types in Eybens
Others property types nearby