

€197,000
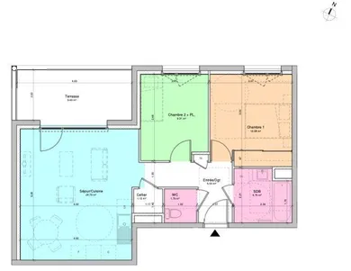
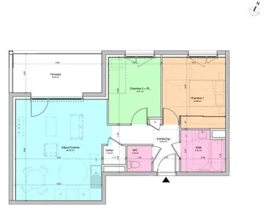
Appartement neuf au Cheylas : frais de notaire réduits ie qu'ils s'élèvent à environ 2,5% du prix de vente. Je vous propose à la vente un T3 neuf sur la commune du Cheylas. Grande terrasse : 9,43m² environ (2,03x4,63m). Idéal pour déjeuner à 6/8 personnes) Prestations : - Espace de vie de 24,73m² environ - 2 chambres dont une avec placard - 1 grande salle-de-bains de 4,76m² environ - 1 WC séparé - Réglementation thermique 2020 - Chauffage et production d'eau chaude : individuel gaz - Sols : carrelage 60x60cm dans les toutes les pièces sauf les chambres, en revêtement stratifié - Murs : Peinture Date de livraison prévisionnelle : 3e trimestre 2028 Proximité des services, commerces, écoles, transports. Autres T3 disponibles : entre 197 000€ et 238 000€, entre 59,36m² environ et 72,37m² environ. Garage en sus : à partir de 15000€ Parking en sus : 6000€ Local vélo privatif en sus : 3000€ (environ 4m² environ) Le Cheylas, commune résidentielle à : A moins de 5min : Goncelin (38570) A moins de 10min : Tencin (38570), Le Touvet (38660) A moins de 15min : Pontcharra (38530), Allevard (38580), Theys (38570), La Terrasse (38660) A moins de 20min : Crolles (38920), Froges (38190), Brignoud Villard-Bonnot (38190), Chapareillan (38530), Porte de Savoie (73800) A moins de 30min : Chambéry (73000), Grenoble (38000), Challes-les-Eaux (73190) Contactez moi pour toute information complémentaire Honoraires d’agence à la charge du vendeur. Bien non soumis au DPE. Les informations sur les risques auxquels ce bien est exposé sont disponibles sur le site Géorisques : www.georisques.gouv.fr. La présente annonce immobilière a été rédigée sous la responsabilité éditoriale de Mlle Marie-Rose Gilles EI (ID 83761), mandataire indépendant en immobilier (sans détention de fonds), agent commercial de la SAS I@D France immatriculé au RSAC de GRENOBLE sous le numéro 478110612, titulaire de la carte de démarchage immobilier pour le compte de la société I@D France SAS.
Ref: 1944334-6
of
Fees incl. VAT payable by the seller
See the fees scaleEnergy performance diagnosis
Not requiredGreenhouse gas emission index
Not requiredSimilar properties




Nearby towns