

€158,000
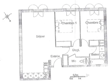
Situé au premier étage d’une résidence sécurisée avec ascenseur, cet appartement de type 3 vous séduira par son agencement fonctionnel et son confort moderne. Il se compose d’une entrée avec dégagement, d’un séjour lumineux avec coin cuisine, de deux chambres, d’une salle d’eau et de WC séparés. L’appartement est exposé sud-ouest et donne côté cour, offrant ainsi un cadre calme et agréable, à l’abri des nuisances. La résidence répond aux normes PMR, garantissant une accessibilité optimale. Vous bénéficiez également d’une place de stationnement privative et sécurisée, située dans la cour de la copropriété, un véritable atout au quotidien. Un bien confortable, pratique et idéalement situé, parfait pour une résidence principale comme pour un investissement. La presente annonce immobiliere vise 2 lots situés dans une copropriété de 53 lots au total et ne faisant l'objet d'aucune procédure en cours citée à l'article L. 721-1 du code de la construction et de l'habitation. Montant moyen mensuel de charges déclaré par le vendeur : 103.67€ par mois (soit 1244 € annuel). Honoraires d'agence à la charge du vendeur. Information d'affichage énergétique sur ce bien : classe ENERGIE C indice 160 et classe CLIMAT B indice 6. Les informations sur les risques auxquels ce bien est exposé, y compris l'obligation légale de débroussaillement, sont disponibles sur le site Géorisques : http://www.georisques.gouv.fr. La présente annonce immobilière a été rédigée sous la responsabilité éditoriale de Mme Sylvie Mercier mandataire indépendant en immobilier (sans détention de fonds), agent commercial de la SAS I@D France immatriculé au RSAC de LA ROCHELLE sous le numéro 837825322, titulaire de la carte de démarchage immobilier pour le compte de la société I@D France SAS.
Ref: 1959932
of
Fees incl. VAT payable by the seller
See the fees scaleEnergy performance diagnosis
Greenhouse gas emission index
Similar properties

